Эп-563
Эп-563 — узкоколейный контактно-аккумуляторный электропоезд постоянного тока, выпущенный в 2014 году Рижским вагоностроительным заводом в Латвии в единственном экземпляре для Новоафонской пещерной железной дороги[1].
| Эп-563 | |
|---|---|
![]() Электропоезд Эп-563-003 на станции Зал Апсны | |
| Производство | |
| Годы постройки | 2014 |
| Страна постройки |
|
| Заводы |
|
| Производитель | Рижский вагоностроительный завод |
| Составов построено | 1 |
| Вагонов построено | 6 |
| Технические данные | |
| Род тока и напряжение в контактной сети | Постоянный 300 В |
| Число вагонов в составе | 6 |
| Композиция | Мг+Пп+Пп+Пп+Пп+Пх |
| Пассажировместимость | 102 (сидячих, для 6-вагонного состава) |
| Ширина колеи | 900 мм |
| Конструкционная скорость | 30 км/ч |
| Эксплуатация | |
| Страны эксплуатации |
|
| Компания | Новоафонская пещерная железная дорога |
| Дорога | Новоафонская пещерная железная дорога |
| В эксплуатации | с 2014 |
В 2013 году в связи с устареванием электропоездов «Турист» Новоафонская пещерная железная дорога заключила контракт стоимостью 2 миллиона евро на производство узкоколейного контактно-аккумуляторного электропоезда, конструктивно схожего с эксплуатировавшимися ранее, но с применением современных технологий. В 2014 году заводом был выпущен новый электропоезд, получивший обозначение серии Эп-563 и номер 003 (первые два номера занимает выпущенный ранее электропоезд «Турист»), который вскоре поступил на территорию пещеры[2].
Конструкция
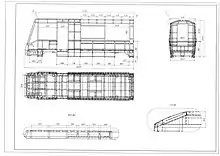
Электропоезд формируется из 6 вагонов: одного моторного головного, четырёх прицепных промежуточных и одного прицепного хвостового вагонов. При разработке электропоезда за основу были взяты электропоезда ЭП «Турист», выпущенные заводом в 1975 году для Новоафонской пещеры, однако при его производстве были использованы современные технологии. Каждый из вагонов поезда опирается на две колёсные пары, расположенные в одной раме. Колёсные оси моторного вагона снабжены двумя тяговыми электродвигателями, по одному на ось[1].
Кузова вагонов металлические, по бокам имеют двойной уклон с углом в средней части по высоте по аналогии с кузовами ранее выпущенных электропоездов ЭП. Питание моторного вагона электропоезда осуществляется от контактного рельса, асимметрично проложенного в колее между ходовыми рельсами. Напряжение контактного рельса — 300 В постоянного тока. Места, где контактный рельс отсутствует, поезд проезжает на аккумуляторах.
Моторный вагон представляет собой электровоз с одноместной кабиной управления и машинным отделением, в котором расположены аккумуляторы. Двери в кабину одностворчатые, расположены с обеих сторон вагона. Прицепные вагоны имеют двухстворчатые автоматические двери, расположенные по обеим сторонам в середине вагона. Общая вместимость электропоезда составляет 102 сидячих места. Промежуточные прицепные вагоны имеют салон на 20 сидячих мест, хвостовой — салон на 22 сидячих места. По сравнению с электропоездом ЭП, хвостовой прицепной вагон не имеет кабины управления — управление ведётся из моторного вагона, при этом машинист имеет возможность обозревать путь через видеокамеры, установленные в верхней части стекла головного прицепного вагона. Пассажиры вагона имеют возможность обозревать путь через торцевое стекло.
В отличие от старых электропоездов ЭП торцы головного и хвостового вагонов, помимо двух буферных фонарей, оснащены верхним прожектором, торцевые стёкла оборудованы стеклоочистителями. Пульт управления машиниста имеет несколько мониторов — на центральном отображаются технические параметры поезда (скорость, сила тока, напряжение на электродвигателях, на аккумуляторах и контактном рельсе), на левом — параметры тормозной системы, на верхних — изображения с видеокамер поезда. В левой части пульта управления находятся рукоятки реверса и контроллера[2].


Пассажирские салоны имеют мягкие откидные сиденья, расположенные спинками к боковым окнам. В головном прицепном вагоне со стороны хвостового торца имеется по шесть откидных сидений с каждой стороны от прохода, в противоположной части вагона и промежуточных вагонах — по пять. Двери автоматические, состоят из двух раздвижных створок. В салонах установлены камеры видеонаблюдения и системы пожарной безопасности[2].
Фотографии
Моторный вагон, вид сбоку
Интерьер салона хвостового вагона, вид в сторону тоннеля
Интерьер салона
См. также
Примечания
Комментарии
- Электропоезд эксплуатируется в Абхазии, являющейся спорной территорией. Согласно административному делению Грузии, спорную территорию занимает Абхазская Автономная Республика. Фактически спорную территорию занимает частично признанное государство Республика Абхазия.
