Здание Большой гильдии
Здание Большой гильдии (эст. Suurgildi hoone) — сооружение в готическом стиле в Таллине, в центре Старого города на улице Пикк. С 1952 года в здании располагается Эстонский исторический музей. Памятник архитектуры, в 1997 году внесено в регистр культурного наследия Эстонии.
| Памятник архитектуры | |
| Здание Большой гильдии | |
|---|---|
| эст. Suurgildi hoone | |
| |
| 59°26′18″ с. ш. 24°44′42″ в. д. | |
| Страна |
|
| Местоположение | Таллин, улица Пикк, 17 / улица Лай, 14—16 |
| Архитектурный стиль | готика |
| Первое упоминание | 1406 год |
| Строительство | 1406—1410 годы |
| Статус | памятник культуры |
| Высота | 20,5 м |
| Материал | известняк |
| Состояние | отреставрировано |
История
Большая гильдия Ревеля (первое время называвшаяся Детской), объединявшая богатых купцов, судовладельцев и ювелиров, образовалась в середине XIV века, отделившись от гильдии Святого Канута. Со временем Большая гильдия, в которую принимались только немцы, приобрела главенствующее положение в городе. В магистрат города — ратманами и бургомистрами — избирались только члены Большой гильдии. Гильдия контролировала торговлю мехами, солью, сукном, металлом и другими товарами. В её руках находилась торговля с Новгородом и Псковом[1][2][3].
Первоначально, с 1370 года, гильдия располагалась в здании между улицами Пикк и Пюхавайму. К концу XIV века старое здание перестало удовлетворять потребностям гильдии и было принято решение о переезде в более просторное. Для нового здания гильдии в 1406 году «в первое воскресенье после Пасхи» был приобретён жилой дом бывшего бургомистра Госшалка Шотельмунда, располагавшийся напротив старого здания гильдии, и участок за домом, с двором и хозяйственными постройками, протянувшийся до улицы Лай[1][4][5].
К 1410 году приобретённые постройки были снесены и на их месте выстроено новое здание из известняка. При строительстве по возможности использовались стены и фундаменты старых построек. При этом новая постройка была отодвинута на полметра вглубь от «красной линии» улицы, чем было нарушено предписание магистрата о строгом соблюдении единой линии застройки. Предполагается, что сделано это было для улучшения обзора величественного здания. С той же целью позже была снесена часть старого здания гильдии, проданного в 1412 году ратману Герду Витте, тем самым образовав небольшую площадь между новым зданием гильдии и церковью Святого Духа[5][6].
В 1413 году гильдия приобрела часть участка слева от здания, на котором были пристроены подсобные помещения. Со стороны улицы Пикк было построено небольшое строение, имеющее в нижней части сквозной арочный проход, а сверху — помещение акцизной камеры, вход в которую был проделан из малого зала гильдии. Со стороны улицы Лай были построены «камора невесты» и другие помещения, опирающиеся на специально для этого построенный каменный столб и две пологие арки. В 1853 году эта пристройка была перестроена в стиле классицизма по проекту архитектора Х. А. Габлера. Дворик между этими постройками не застраивался и служил проходом между улицами Пикк и Лай (с XIX века — Биржевой проход; эст. Börsi käik)[2][7][8].
Архитектура здания

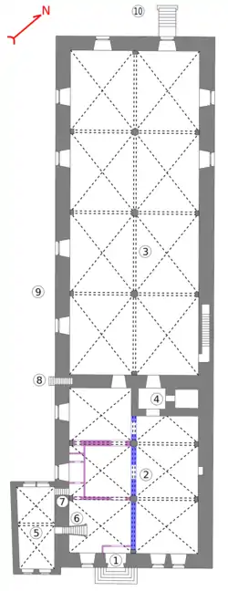
1 — главный портал со стороны улицы Пикк
2 — малый зал
(синим показаны перестройки XVII века,
лиловым показаны перестройки XIX века)
3 — большой (главный) зал
4 — кухня и очаг
5 — акцизная камера
6 — внутренний портал в акцизную камеру
7 — служебный вход из арки под акцизной камерой
8 — вход к лестнице на чердак со стороны Биржевого прохода
9 — Биржевой проход
10 — задний двор со стороны улицы Лай
Высота одноэтажного, с двускатной крышей здания, с фасадной части составила 20,5, ширина — 16,8, длина — около 49 метров. Со стороны улицы Пикк щипец, отделённый от фасада первого этажа горизонтальной тягой (карнизом), украшен двумя высокими и двумя низкими стрельчатыми ложными нишами, расположенными симметрично. В плоскости высоких ниш имеются: в нижней части — прямоугольные люки для доставки товаров, в верхней части — небольшие отверстия, в которых ранее крепились балки с блоками для подъёма-спуска грузов. Над и по бокам от высоких ниш расположены три ниши-четырёхлистника, из которых в верхней имеется отверстие для грузовой балки, а в боковых изображены гербы Большой гильдии: прямой серебряный крест на червлёном поле. Этот герб являлся также и малым (торговым) гербом Ревеля[к 1][1][10][11].
Вершина щипца украшена коньком в форме башенки, высотой 1,6 метра. На башенке указана дата «1410» — год завершения основных строительных работ[11]. В 1627 году на конёк был установлен массивный флюгер с двумя шарами и сложным орнаментом, изготовленный мастерами Иоахимом Гезелем и Даниэлем Пеппелем. Этот флюгер не сохранился и в дальнейшем был заменён более простым[9].
Стрельчатый портал здания несколько сдвинут влево от центральной оси фасада. Откосы портала выложены тёсаными каменными блоками, вертикальные устои отделены от архивольта (стрельчатого завершения) горизонтальными трёхгранными импостами. Дверь обрамлена внутренней тягой в форме валика[12].
Двустворчатая дубовая дверь портала украшена гвоздями с декоративными шляпками в форме розеток. На створках расположены бронзовые дверные молотки, отлитые в 1430 году мастером Мертеном Зейфертом. На круглых основах диаметром 36 см расположены львиные маски со стилизованной гривой, держащие в клыках трёхлопастные кольца, служащие колотушками. На основе правого молотка вокруг львиной гривы расположена прорезная надпись на латыни: «anno-domini-millesimo-ccccxxx-o-rex-glorie-xpe-veni-in-pace» («в год господний тысяча 430 царь славы Христос приди с миром»), на основе левого молотка — надпись на нижненемецком: «got-d’-ghebenediet-al-dat-hus-is-vnde-noch-kommen-sal» («да благословит господь всех, кто в этом доме и кто придёт сюда»)[12][13][14].
Изначально к порталу вела простая каменная лестница. Позже было пристроено предпорожье (впервые упоминается в 1517 году), но в середине XVIII века оно было снесено. В 80-х годах XX века предпорожье было восстановлено[1][10][15].
По бокам от портала расположены высокие окна (одно слева и два справа), изначально бывшие прямоугольными, в конце XIX века перестроенные в стрельчатые. Над порталом в XVIII веке был установлен пятиугольный с пирамидальной крышей и витражами фонарь, выступающий за линию фасада. Слева от портала расположен вход в подвал, обрамление которого несколько выступает за линию фасада. Ещё левее — пристройка акцизной камеры, с арочным проходом в нижней части и двумя прямоугольными окнами сверху; высота пристройки — вровень с карнизом главного фасада[1][10][14][15].
Задний фасад здания не доходит до линии улицы Лай примерно на 10 метров, дворик перед ним отделён от улицы Лай глухим каменным забором с решётчатыми металлическими воротами. На фасаде первого этажа расположены два высоких стрельчатых окна (до конца XIX века бывшие прямоугольными), под одним из которых пристроена лестница. На щипце, отделённом от фасада первого этажа карнизом, расположены одна высокая и две низкие стрельчатые ложные ниши. В нижней части центральной (высокой) ниши имеется большой сводчатый люк, над которым вставлена грузовая балка; в верхней части ниши — узкое стрельчатое окно с широкими откосами. В верхней части боковых ниш проделаны небольшие прямоугольные окошки. Щипец увенчан коньком в форме башенки с треугольными фронтонами. В XIX веке задний фасад здания из-за плохого состояния был разобран и возведён заново[16].
Стена здания, выходящая в Биржевой проход, имеет одно малое и пять высоких окон первого этажа (изначально прямоугольных, с конца XIX века — стрельчатых) и несколько небольших квадратных окон подвального помещения. Между окон в стене имеются две двери: одна ведёт к лестнице на чердак, вторая — в подвал, над ней проделано отверстие для грузовой балки. В арочном проходе под акцизной камерой имеются два служебных входа в здание. Противоположная стена здания вплотную примыкает к соседнему строению[к 2] и только частично выходит во внутренний дворик соседних домовладений[к 3], где имеет два окна[16].
Интерьер
Внутри здания изначально были расположены друг за другом двухнефные малый и большой, или главный, залы.
Малый зал повторял очертаниями и габаритами дом Шотельмунда, имел в длину 17,3 метра и был перекрыт шестью крестовыми сводами с подпружными арками, опиравшимися на два шестигранных пилона и настенные консоли. В XVII веке этот зал был разделён по оси пилонов продольной стеной на два помещения, причём от пилонов остались видны только края капителей. Правое помещение, шириной 6,3 метра, стало называться «малой гильдейской комнатой»[17]. В задней его части располагалась кухня с очагом. В подвале под очагом находилась топка для нагрева калориферов, обогревавших залы[13].
Левая часть бывшего малого зала в конце XIX века была разделена поперечными стенами на тамбур и несколько небольших помещений[18]. В левой стене за тамбуром расположен внутренний портал в акцизную камеру. Дверной проём обрамлён вертикальными и горизонтальными тягами, над проёмом — широкая перемычка, также обрамлённая тягами. На перемычке помещено изображение герба Большой гильдии, окружённое растительным орнаментом и датой «1551»[к 4]. К порталу в 1890 году была пристроена лестница с каменными перилами[19].
Большой зал, имеющий размеры 26,5 на 13,8 метров, был выстроен на месте прежнего двора и хозяйственных построек. Зал перекрыт восемью крестовыми сводами с подпружными арками, опирающимися на настенные консоли и три шестигранных пилона. Пилоны увенчаны шестигранными капителями, украшенными резным орнаментом. На капители первого от входа пилона вырезан растительный орнамент, на капители второго пилона — орлы, львы и драконы. На трёх гранях капители третьего пилона вырезаны дракон и растительный орнамент, а на трёх оставшихся — дата окончания строительства здания: «anno-dni-m-cccc-x» (anno domini 1410 — в год Господний 1410)[10][20].
Средневековое внутреннее убранство здания не сохранилось. Из более позднего сохранились только два люнета, созданные в 1869 году и расположенные в правой части малого зала. На одном, работы Томаса Альберта Шпренгеля, изображена встреча первого лютеранского проповедника в Ревеле, на другом, работы Леопольда фон Пецольда — въезд в город «майского графа»[13].
В XVI веке в большом зале был установлен помост для музыкантов, а в XVIII веке для них был построен балкон на четырёх столбах, разобранный в 1920-е годы[8].
Для освещения большого зала в 1674 году под каждым сводом были укреплены люстры, заменёнными в XIX веке новыми. Для отопления использовались изначально подвальные калориферы, а с XVII века — кафельные печи. Предположительно, изначально в здании пол был каменный. В XVIII веке был настлан деревянный досчатый пол, заменённый в XIX веке паркетом[8].
Использование здания
Здание гильдии использовалось для деловых переговоров, празднеств и свадеб (в «каморе невесты» молодожёны проводили первую брачную ночь[10]), совместных обедов членов гильдии. На чердаке здания хранили товары, подвал сдавался в аренду под винный склад. В 1854 году виноторговцем Карлом Германом Петенбергом в нём был открыт винный погреб «Сладкая нора» (нем. Das Süsse Loch, эст. Magus urg), пользовавшийся большой популярностью у жителей города[1].
После пожара 1820 года в церкви Олевисте, до её восстановления, в здании гильдии совершались богослужения, а после пожара 1855 года, уничтожившего театр на улице Лай, театральная труппа давала в здании гильдии свои представления. В 1896 году в здании гильдии был впервые в городе организован киносеанс с помощью кинетоскопа Эдиссона[21].
С 1872 года здание гильдии находилось в пользовании Ревельского биржевого комитета, из-за чего его стали называть зданием Биржи[22].
В 1920 году Большая гильдия как организация была упразднена законом Эстонской Республики об отмене сословных организаций[13][22].
С 1952 года в здании Большой гильдии расположен Эстонский исторический музей. С 2006 года в нём также функционировал Эстонский музей кино, в 2017 году переехавший в собственное здание на Маарьямяэ[21][23].
Здание «каморы невесты» после перестройки 1853 года использовалось в качестве жилых помещений. Во второй половине XX века также было передано Эстонскому историческому музею для служебных помещений[8].
Здание Большой гильдии является наиболее хорошо сохранившимся в первоначальном виде из всех зданий таллинских гильдий[13]. В 2010—2011 годах была проведена большая реставрация и реновация здания[21], которое с 1997 года является охраняемым объектом культурного наследия Эстонии[24]. В апреле 2014 года здание Большой гильдии первым в Эстонии получило знак Европейского культурного наследия[25].
Иллюстрации
Современный интерьер здания («Большой зал»)
Портал здания с предпорожьем
Дверной молоток
Флюгер на коньке крыши
Подвальные помещения
Биржевой проход
(вид на акцизную камеру)
Задний фасад со стороны улицы Лай
Комментарии
- На изображениях XVIII века в нишах помещены оба герба Ревеля — Большой и Малый[9].
- Ул. Пикк, 19. С 1991 года — здание посольства Российской Федерации в Эстонской Республике.
- Ул. Пикк, 19 — ул. Хобусепеа, 3 — ул. Лай, 18.
- Вероятная дата перестройки портала.
Примечания
- Лившиц, 2014, с. 81.
- Мяэвяли, 1981, с. 45.
- Брунс, 2016, с. 230.
- Лив, 1996, с. 35.
- Брунс, 2016, с. 231.
- Лив, 1996, с. 35—36.
- Брунс, 2016, с. 235—236.
- Брунс, 2016, с. 242.
- Лив, 1996, с. 36.
- Мяэвяли, 1981, с. 46.
- Брунс, 2016, с. 232.
- Брунс, 2016, с. 233.
- Мяэвяли, 1981, с. 47.
- Лив, 1996, с. 37.
- Брунс, 2016, с. 234.
- Брунс, 2016, с. 236.
- Брунс, 2016, с. 238.
- Лив, 1996, с. 38.
- Брунс, 2016, с. 239.
- Брунс, 2016, с. 239—240.
- Лившиц, 2014, с. 82.
- Suurgildi hoone : [арх. 24.04.2017] : [эст.] // Eesti Ajaloomuuseum. — Дата обращения: 24.04.2017.
- История Музея кино : [арх. 07.02.2019] // Эстонский исторический музей. — Дата обращения: 07.02.2019.
- 3037 Tallinna Suurgildi hoone ja Börsi käik, 15.-19.saj : [арх. 24.04.2017] : [эст.] // Kultuurimälestiste riiklik register. — Дата обращения: 24.04.2017.
- Inge Laurik-Teder. Suurgildi hoone sai esimesena Eestis Euroopa kultuuripärandi märgise : [арх. 11.04.2014] : [эст.] // Eesti Ajaloomuuseum. — 2014. — 10 aprilli. — Дата обращения: 24.04.2017.
Литература
- Брунс Д. Архитектурные и исторические шедевры Таллинна. — 2-е издание. — Таллинн: КПД, 2016. — 544 с. — ISBN 978-9985-899-81-6.
- Лив Л. О чём рассказывают дома и улицы Старого Таллинна. — Таллинн: PtP International, 1996. — 216 с.
- Лившиц Л. Из истории улиц Таллинна. — Таллинн: КПД, 2014. — 416 с. — ISBN 978-9949-545-02-5.
- Мяэвяли С. Историко-архитектурные памятники Таллина / Перевод с эст. Т. Верхнеустинской, Е. Ракеевой. Худ.-оформ. Т. Тали. — Таллин: Периодика, 1981. — 96 с.
- Leimus I., Loodus R., Mänd A. Tallinna Suurgild ja gildimaja. — Tallinn: Eesti Ajaloomuuseum, 2011. — 528 p. — ISBN 978-9985-9889-5-4.
Ссылки
- Здание Большой гильдии : [арх. 24.04.2017] // Эстонский исторический музей. — Дата обращения: 24.04.2017.
