Храм Аполлона Палатинского
Храм Аполлона Палатинского (лат. Templum Apollinis in Palatio) располагался в Риме на холме Палатин, второй храм, посвящённый Аполлону, из воздвигнутых в столице империи. Основан Октавианом Августом в 36 году до н. э., освящён 9 октября 28 года до н. э. В храме проходили заседания Сената и приёмы иностранных послов, а также располагалась библиотека и крупнейший в Риме культурный центр; здесь же хранились Книги Сивиллы. Храмовый комплекс был устроен по образцу Александрийского мусея, его верховный жрец при Антонинах совмещал функции верховного жреца Египта. 19 марта 363 года храм сгорел, и более не восстанавливался.

История
Гай Юлий Цезарь, после Александрийской войны планировал создание в Риме культового центра по образцу Мусейона, который бы включал библиотеку и хранилище храмовых приношений. Осуществление замысла, по Светонию (Iul., 44) было поручено Марку Теренцию Варрону, но в связи с убийством диктатора в 44 году до н. э., работы были отложены[1].
Октавиан Август, выстраивая основы собственной власти, создал храм общегосударственного культа, посвящённый богу-повелителю Муз; по-видимому, это должно было сделать святилище более значимым, чем Александрийский мусей. Формальным поводом для закладки храма была победа над Секстом Помпеем в 36 году до н. э. Далее храм был перезаложен в честь победы при Акции, и завершён три года спустя. Судя по эпиграфическим памятникам (Corpus Inscriptionum Latinarum I, 2, 331) храм был освящён 9 октября 28 года до н. э. Проперций, в оде на освящение храма (IV, 6. 11—60) говорил именно о победе над Антонием и Клеопатрой и последующем триумфе Августа[2]. После освящения храма в него из храма Юпитера Капитолийского были перенесены Сивиллины книги, и захоронены в золотом ларце под статуей Аполлона[3].
Храм Аполлона играл определённую роль в государственном церемониале. Судя по сообщениям Иосифа Флавия, в храме проводили заседания Сената и принимали иностранных послов; некоторые церемонии Эпохальных игр также совершали здесь[4].
19 марта 363 года храм сгорел, но Сивиллины книги удалось спасти (Аммиан Марцеллин, XXIII, 3).
Устройство. Функции

Неясно, был ли храм соединён с Домом Августа (подобно Александрийскому мусею, включённому в дворцовый комплекс Птолемеев). В портиках храма, как было принято в античности, располагалась двухсекционная (греческая и латинская) публичная библиотека. Светоний вскользь упоминал о декоративном убранстве библиотеки, утверждая, что полки в ней были вызолочены (Aug., 29). По-видимому, это должно было создавать торжественный настрой, приобщающий к божественной премудрости, и превращавший процесс чтения в священнодействие. О чрезвычайной роскоши убранства храма писал и Иосиф Флавий (Иудейская война, II, 6, 1)[4]. О библиотеке, помимо Светония, упоминал и Гораций в своих «Посланиях» (I, 3, 17), а также Овидий (Trist., III, 1, 60). Из схолиев к Ювеналу (I, 128) известно, что в библиотеке храма Аполлона Палатинского были собраны книги по гражданскому праву и свободным искусствам. Почти через полтора века фондами этой библиотеки пользовался Марк Аврелий[5]. В одной из надписей эпохи Адриана указывается, что попечитель-эпистат (др.-греч. ἐπιστάτης) Александрийского мусея одновременно был верховным жрецом Александрии и всего Египта, а также заведовал греческой и латинской библиотеками в Риме, то есть при храме Аполлона Палатинского, обустроенного по образцу мусея[6].
Произведения искусства, помещённые в храме, воспринимались как приношения божеству (Гораций, Послания, I, 3). Античные авторы упоминали, что в Палатинском храме были подлинные статуи Скопаса, Кефисодота Младшего, Тимофея (Плиний, Естественная история, XXXVI, 24, 25, 32). В этом отношении храм был ближе к современному музею, но все коллекции поступили, по-видимому, одновременно как трофеи римского народа. Плиний отдельно упоминал собрание колец, перстней, резных камней и камей — дактилиотеку (XXXVII, 11), пожертвованную Клавдием Марцеллом — родственником Августа. Здесь же находились жертвенные светильники, вывезенные из Ким Этолийских (XXXIV, 14). К храму примыкал парк, спускавшийся по восточному склону холма[7]. По мнению В. Поршнева, храм Аполлона Палатинского по объёму помещённых в него коллекций, мог превосходить Александрийский мусей; однако в Риме не сложилось учёного и поэтического «хора», который бы создавал творческую и образовательную среду; эта функция всецело оставалась за Александрией[7].
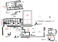
Археологическое исследование

Археологические раскопки в районе Дома Августа велись с 1865 года под руководством Пьетро Роса. В 1937 году муссолиниевское правительство возобновило раскопки под началом Альфонсо Бартоли. В результате раскопок 1960-х годов под руководством Джанфилиппо Кареттони, была найдена искусственная терраса площадью 70 × 30 м, на котором располагалась алтарная часть храма. Основание было выполнено из больших блоков туфа и травертина с использованием римского бетона. Колоннады храма были из каррарского мрамора, причём как в пронаосе, так и в аркадах вдоль внешних стен и других построек. Были также найдены полихромные керамические плитки, расписанные мифологическими сценами[8].
Примечания
- Борухович, 1976, с. 197.
- Поршнев, 2012, с. 230.
- Platner, Ashby, 1929, p. 17—18.
- Поршнев, 2012, с. 231.
- Борухович, 1976, с. 198.
- Поршнев, 2012, с. 215.
- Поршнев, 2012, с. 232.
- Filippo Coarelli. Rome and environs : an archaeological guide. — University of California Press, 2007. — 555 p. — P. 142—143. ISBN 978-0-520-07961-8
Литература
- Борухович, В. Г. В мире античных свитков. — Саратов: Изд-во Саратовского университета, 1976. — 224 с.
- Поршнев, В. П. Мусей в культурном наследии античности. — М. : Новый Акрополь, 2012. — 336 с. — (Традиция, религия, культура). — 1500 экз. — ISBN 978-5-91896-030-1.
- Olivier Hekster and John Rich. Octavian and the Thunderbolt: The Temple of Apollo Palatinus and Roman Traditions of Temple Building // The Classical Quarterly. New Series. — 2006. — Vol. 56, no. 1. — P. 149—168.
- Samuel Ball Platner and Thomas Ashby. A topographical dictionary of Ancient Rome. — Oxford: Oxford University Press, 1929. — P. 17—19. — 608 p.
Ссылки
- Le temple d'Apollon (фр.). Université de Caen Basse-Normandie.