Темпль (Черновцы)
Темпль (реформистский Храм, нем. Tempel) — хоральная синагога в неомавританском стиле, возведённая в 1870-х годах в Черновцах (тогда Австро-Венгрия) и сожжённая в 1941 году немецко-румынскими оккупационными войсками. В настоящее время в бывшем здании синагоги, перестроенном в 1950-х годах, размещается кинотеатр «Чернівці».
| Синагога | |
| Темпль | |
|---|---|
| нем. Der Israelitische Tempel in Czernowitz | |
| |
| 48°17′35″ с. ш. 25°55′58″ в. д. | |
| Страна |
|
| Местоположение | Черновцы |
| Конфессия | Иудаизм |
| Архитектурный стиль | неомавританский стиль |
| Архитектор | Захаревич, Юлиан |
| Дата основания | 1873 |
| Дата упразднения | июнь 1941 |
История
В 1867 году черновицкие евреи получили полные гражданские права, и многие из них стали активно участвовать в политике, социальной и культурной жизни. Так, до Первой мировой войны два мэра города и пять ректоров университета были евреями. В еврейском населении Черновиц была велика доля ассимилированной интеллигенции, многие представители которой были выходцами из разных стран и получили образование в лучших университетах Европы. Поэтому среди черновицких евреев в большей степени, чем в других восточноевропейских общинах, было сильно влияние Хаскалы (еврейского Просвещения) и реформистского иудаизма. Ассимилированные евреи говорили по-немецки и считали себя «немцами Моисеева вероисповедания». Остальная часть общины — мелкие торговцы, ремесленники — оставалась ортодоксальной. Главный раввин города д-р Лазарь Элиас Игель — сторонник реформизма — стремился к смягчению возникавших конфликтов. Вначале было решено проводить в городской Большой синагоге раздельные богослужения, но это не устроило ни одну из частей общины, поэтому реформисты арендовали отдельное помещение на Ратхаусштрассе (теперь часть ул. Главной). Однако этого помещения для растущей общины было недостаточно, и более богатые реформисты решили построить собственную синагогу.
В 1872 году по инициативе филантропа Генриха Вагнера было основано «Общество по строительству еврейского темпля в Черновцах» (нем. Czernowitzer Israelitische Tempelverein). В комитет вошли видные представители общины. Начался сбор пожертвований. Участок для строительства Темпля был подарен общине вдовой крупного промышленника М. Цукера Амалией Цукер и располагался в центре города, вдали от старого еврейского квартала. Проект храма община заказала известному польскому архитектору, выпускнику Венского технического университета, профессору львовской Технической академии Юлиану Захаревичу, который в то время занимался проектом железной дороги Львов — Черновцы. В проектировании синагоги участвовали также черновицкие архитекторы Антон Фиала и Иоганн Грегор.
Уже 8 мая 1873 года главный раввин д-р Игель заложил первый камень в основание здания[1]. Но в дальнейшем строительство затянулось из-за финансовых трудностей: в проект были внесены удорожающие его изменения (добавлен купол), и лишь крупное пожертвование от Генриха Вагнера позволило его завершить.
Храм было торжественно открыт 4 сентября 1877 года. Открытие широко освещалось в прессе.

Здание выглядело монументально. Вместительность храма была 1000 человек. Главный вход предназначался для мужчин и вёл в вестибюль. (Женщины попадали внутрь через два отдельных боковых входа.) На памятной доске в вестибюле помещался список 100 благотворителей, пожертвовавших средства на строительство. Главный зал, в который из вестибюля вели три двери, был богато расписан, со стенами светло-синего цвета, расписанными первоклассными художниками, и с золотыми звездами на голубом фоне на куполе. На боковых стенах были цветные витражи. В ковчеге за красным бархатным занавесом с золотой вышивкой хранились 60 свитков Торы.
Раскол в общине за время строительства был преодолён. В результате компромисса между группами литургия не была реформирована полностью: существовали кантор (хаззан) и хор, но органа не было. Однако раввин проповедовал по-немецки, и Тора читалась лицом к прихожанам, а не к ковчегу.
В 1880 году император Франц Иосиф, находясь с визитом в Черновцах, посетил синагогу в Йом Киппур.
В синагоге пел в юности Йозеф Шмидт (1904—1942), впоследствии ставший известным тенором.
В 1937 году Темпль подвергся реставрации.

После присоединения Северной Буковины к СССР в 1940 году синагога была конфискована государством и закрыта. 5 июля 1941 года немецкие и румынские войска, сопровождаемые айнзацгруппой 10b, заняли город. Синагогу подожгли, пожар уничтожил внутреннее оформление и облицовку купола. За несколько дней члены айнзацгруппы с помощью румынской полиции уничтожили 2000 евреев, в том числе главного раввина д-ра Авраама Марка. Из остального еврейского населения большая часть была депортирована в Транснистрию, где две трети из них умерло; часть была выселена в городское гетто. В конце войны большинство из выживших не возвратилось в советские Черновцы, а поселилось в Румынии и эмигрировало в Израиль.
В 50-х годах остатки синагоги попытались взорвать. Внешние стены здания устояли, но купол был снесён. К зданию, заново построенному в уцелевших стенах, добавили четвёртый этаж и двухскатную крышу с фронтоном, и в 1959 году в нём был открыт кинотеатр «Жовтень» («Октябрь»), переименованный в 1992 году в «Черновцы». Современное здание мало похоже на прежнее, хоть и сохранило некоторые его внешние очертания.
Архитектура
Согласно заказу общины, синагога должна была быть ориентирована на восток, все прихожане должны были иметь возможность видеть со своих мест ковчег и возвышение (бима). Во время строительства община решила внести изменения в потолок молитвенного зала: вместо деревянного потолка с небольшим стеклянным куполом в центре теперь должен быть возведён огромный купол над зданием. Это потребовало целый ряд изменений в проекте уже после начала работ: для опоры понадобились более массивные литые колонны, и толщину стен пришлось увеличить[2].
Описание

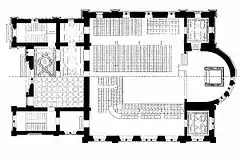
Синагога была отдельно стоящим зданием в неомавританском стиле на пересечении двух улиц (Темпельгассе и Каролиненгассе) фасадом к третьей (Университетсгассе). Трёхэтажное здание было ориентированно с запада на восток и состояло из двух частей: западной, включавшей главный вход, вестибюль, лестницы и различные помещения общины, и более широкой восточной части, квадратной в плане, с молитвенным залом с апсидой, увенчанным большим куполом. Стены были кирпичными и оштукатуренными.
Мужчины сидели на первом этаже, в центре молитвенного зала, лицом к ковчегу, а женщины сидели на двух этажах галёрки по её западной, северной и южной сторонам.
Здание имело в общей сложности 39 м в длину и 24 м в ширину. Его купол достигал высоты в 39 метров. В 1950-х годах купол был заменён на двухскатную крышу с фронтоном.
Внешний вид

Здание визуально поделено на нижний и два верхних яруса. Первый, наземный ярус очерчен карнизами над и под окнами, окна второго и третьего объединены общими нишами с полукруглыми арками вверху, создающими вид единых высоких окон. Цоколь внизу фасадов выделен горизонтальными обломами, фасады завершены лепным зубчатым антаблементом. Фасады вертикально поделены пилястрами, отражающими организацию внутреннего пространства. Каждый пилястр оканчивается башенкой, украшенной слепыми арками и увенчанной маленькой луковицей со шпилем.
Главный, западный фасад состоит из центральной части с двумя выступами по бокам в форме башен. В центре его расположена большая украшенная дверь, обрамлённая аркой на двух колоннах на цоколе, над ней — большое тройное окно с подковообразными арками, увенчанное восьмиконечной розой. Тимпан покрыт декоративной керамической плиткой. По бокам арки расположены по паре сводчатых окон на первом ярусе и по круглому окну с пятиконечным плетёным узором, окружённым декоративной панелью, на втором ярусе. Панели вокруг тимпана также покрыты декоративной плиткой.
Боковые выступы имеют по украшенной двери, окружённой декоративной панелью на первом этаже, и по нише с круглой аркой, объединяющей двойные окна второго и третьего этажей. На третьем этаже над двойными подковообразными окнами находится маленькое круглое окошко, а по каждым из них — по декоративной утопленной панели.
В центре фасада, над карнизом над большой аркой, расположены Скрижали Завета.

Южный и северный фасады идентичны и поделены пилястрами на пять частей, с двойными окнами и нишами с круглыми арками, объединяющими окна второго и третьего этажей. Вверху круглые окна-розетки с узорами в виде двойных шестиконечных звёзд чередуются с подковообразными арками окон. На центральной части стены молитвенного зала окна тройные.
Восточный фасад синагоги разделён пилястрами на три части. Центральная часть включает апсиду, по бокам которой повторена композиция боковых фасадов молитвенного зала — двойные окна в нишах, с подковообразными арками вверху. У апсиды пять граней, на каждой из которых расположены по двойному окну на уровне второго этажа, с маленьким круглым окном вверху.
Купол в форме луковицы покоится на цилиндрическом барабане, стоящем на 16-гранном основании, которое в свою очередь лежит на восьмигранном основании. Барабан пронизан 16 окнами с круглыми арками. Сам купол представляет собой двойную раковину. Внешняя раковина металлическая; по первоначальному плану предполагалось декорировать её металлическим покрытием, но это не было осуществлено. Купол увенчан шпилем с шестиконечной звездой.
Интерьер
Галерея
Главный фасад
Северный и западный фасады, фото около 1920 года
План синагоги. Домик сторожа построен не был
Сечение по долготе, вид с юга
План внутреннего оформления сводов и потолка
Примечания
- Некоторые источники утверждают, что второй камень заложил православный архиепископ Буковины д-р Евгений Гакман, однако, по другим источникам, он умер в Вене в марте (недоступная ссылка) или апреле Архивная копия от 7 марта 2016 на Wayback Machine того же года.
- Julian Zachariewicz; Israelitischer Tempel in Czernowitz; Allgemeine Bauzeitung; 1882,;#47; pp. 48-49
Литература
- (нем.) Allgemeine Zeitung des Judentums, 1857, no. 43 (19.10), с. 589-90.
- (нем.) Allgemeine Zeitung des Judentums, 1858, no. 18 (26.4), с. 247.
- (нем.) Bildarchiv der Österreichischen Nationalbibliothek.
- (нем.) "Chernauts, " in: Pinkas hakehilot: Romania, vol. 2 (Jerusalem, 1980), с. 487—511.
- (нем.) Gold, Hugo (ed.), Geschichte der Juden in der Bukowina, 2 vols. (Tel Aviv, 1958-62).
- (нем.) Zachariewicz, Julian, «Israelitischer Tempel in Czernowitz», Allgemeine Bauzeitung, 1882, #47, с. 48-49, илл. 28-32.
- (нем.) Corbea-Hoisie, Andrei (ed.), Jüdisches Städtebild Czernowitz (Francfort sur le Main, 1998).
- (нем.) Sha’ari, David, Die jüdische Gemeinde von Czernowitz in Harald Heppner (ed.), Czernowitz: Die Geschichte einer ungewöhnlichen Stadt (Köln, Weimar, Wien, 2000), с. 103—127
- (нем.) Sternberg, Hermann, Zur Geschichte der Juden in Czernowitz (Tel Aviv 1962).
Ссылки
- Черновцы — статья из Электронной еврейской энциклопедии
- Еврейская жизнь Буковины. Гаскала (недоступная ссылка)
- (англ.) Сайт Центра еврейского искусства Еврейского университета: Цифровая реконструкция синагоги
- (англ.) Сайт о еврейской общине Черновиц
- (англ.) История евреев Буковины (1919—1944)
- (англ.) Jewish virtual library: История евреев Черновцов
- (англ.) The Temple in Czernowitz, Ukraine (документальный фильм) на YouTube
