Противостояние в парке «Торфянка»
Противостоя́ние в па́рке «Торфя́нка» — общественный конфликт в связи с протестами части местных жителей против планов строительства православного храма в парке «Торфянка» на севере Москвы, который развивался в 2015[2] и 2016 годах[3]. Разделивший местных жителей между двумя лагерями[4] конфликт районного масштаба приобрёл общемосковский характер. В конфликт с обеих сторон были вовлечены общественные и политические активисты не из числа местных жителей.
.png.webp)
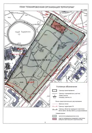
Выделенная под строительство храма территория природного комплекса № 65a изображена в верхней части рисунка (заштрихована тёмно-красным).
Попытка начать 18 июня 2015 года строительство православного храма в парковой зоне, сделанная без заблаговременного оповещения местных жителей и в условиях оспаривания в судах решения о строительстве, превратила парк в арену противостояния[5]. Непосредственной причиной протестов стало появление информации о незаконном характере строительства, фальсификации публичных слушаний и застройке озеленённой территории[6][7] (). Разделивший местных жителей между двумя лагерями[4] конфликт привлёк личное внимание патриарха Кирилла, который 24 июня обратился к вовлечённым сторонам с призывом «к отказу от конфронтации»[2]. При этом он признал необходимым «дождаться судебного решения» и выразил надежду все существующие разногласия преодолеть в правовом поле[8] (). Впоследствии, уже после принятия решения о переносе строительства, патриарх Кирилл заявил, что противники строительства не защищают парк, а «ненавидят изображение креста Господня», и призвал не идти у них на поводу[9]. Защитники парка, среди которых были пожилые люди и женщины с детьми, выступали против уничтожения зеленых насаждений парка и его застройки[10][5][11][12][13]. Часть верующих поддержала защитников парка, возмутившись репрессиями органов правопорядка по отношению к защитникам парка[14]. 31 июля 2015 года Бабушкинский районный суд города Москвы удовлетворил ходатайство противников строительства храма в парке «Торфянка», которые, в свою очередь, отозвали свой иск с требованием отменить результаты публичных слушаний 2012 года[15]. Согласно официальной формулировке Бабушкинского районного суда, заявители «потеряли интерес к судебному производству по настоящему заявлению, указывая на проведение проверки Бабушкинской межрайонной прокуратурой»[16] (). В тот же день пресс-секретарь патриарха диакон Александр Волков отозвался на решение суда сообщением о готовности Московской городской епархии «рассмотреть возможность строительства в другом месте — в том же микрорайоне, в пределах шаговой доступности»[17]. В целом, отклики на решение суда от 31 июля 2015 года и его трактовки разноречивы (). 2 сентября 2015 года Интерфакс сообщил, что голосование по вопросу об альтернативном участке под размещение храма развернулось в рамках интернет-проекта «Активный гражданин»[18]. Его результаты и решение московских властей стали известны в октябре 2015 года. Новый участок под храмовое строительство выделен по адресу Анадырский проезд, владение 8[19], где в 2016 году был построен временный быстровозводимый деревянный храм-часовня Святителя Макария, митрополита Московского и всея Руси[20][21] ().
Противостояние в парке продолжалось в 2017 году в «тлеющем» виде[22]. Согласно обнародованной в ноябре 2017 года информации, участок должен был быть освобождён, как только подрядной строительной организации будет выдано разрешение на возведение капитального храма на новом участке; вопрос был увязан с разработкой проектной документации, которая должна была завершиться в первой декаде ноября[23].
5 апреля 2018 года Комитет государственного строительного надзора города Москвы застройщику — религиозной организации «Финансово-хозяйственное управление Русской Православной церкви (Московский Патриархат)» — оформил разрешение на строительство № 77-151000-016746-2018 объекта «Храмовый комплекс» по адресу: Москва, СВАО, Лосиноостровский, Анадырский пр., вл. 8[24]. Строительство капитального храма на 500 прихожан на этом месте планировалось начать в мае 2019 года, проект был одобрен в программе «Активный гражданин»[25].
Активная фаза конфликта завершилась после того, как руководство Русской православной церкви пошло на уступки противникам строительства и приняло решение о переносе строительство храма[26] из парка «Торфянка» в Анадырский проезд. Однако установленный в парке поклонный крест остался предметом разногласий. Представленный на обсуждение в системе «Активный гражданин» проект реконструкции парка породил в апреле 2018 года новую волну критики, предметом которой стало его присутствие в проекте[27]. При этом, как заявил Заместитель главы Синодального отдела по взаимоотношениям Церкви с обществом и СМИ Вахтанг Кипшидзе, поклонный крест на огороженном участке парковой территории сохраняется на законных основаниях, «пока не расторгнут соответствующий договор с московскими властями»[28]. В 2020 году сообщалось, что поклонный крест, станет «частью большого исторического и культурно-спортивного проекта „Дорога в Лавру“»[29].

В 2021 году Владимир Ресин сообщил, что капитальный храм Казанской иконы божьей матери в Лосиноостровской, строительство которого началось в 2019 году на ранее выделенном альтернативном участке по адресу Анадырский проезд, владение 8, будет достроен в 2022 году[30]. Постановление Правительства Москвы 2013 года о выделении участка парка Торфянка под храмовый комплекс действует и в настоящее время (июль 2021 года)[31].
Официальный статус территории
| № | Именование | Площадь | Режим регулирования градостроительной деятельности |
|---|---|---|---|
| 65 | Парк на Изумрудной улице | ||
| 65а | Территория храмового комплекса на Осташковском проезде | ||
| № участка | Назначение | Вид документации | Площадь участка, га |
|---|---|---|---|
| 1 | |||
| 2 | |||
| 3 | |||
В документах московского правительства используется следующее именование парка — объект природного комплекса № 65 Северо-Восточного административного округа города Москвы «Парк на Изумрудной улице»[1].
Правовой статус части территории парка установлен Постановлением Правительства Москвы от 30 апреля 2013 года за подписью С. С. Собянина, которым из природного комплекса № 65 Парка на Изумрудной улице Северо-Восточного административного округа была выделена территория ограниченного пользования № 65а под храмовый комплекс[1].
Таким образом, формально изначальная (до выделения территории храмового комплекса) площадь объекта № 65 составляет 16,6 га, из которых 0,2 га поменяли статус (см. таблицу).
Согласно тому же постановлению, на выделенной из площади парка территории в 0,2 га предусмотрены следующие параметры объектов капитального строительства: общая площадь объекта — 1 164 м2; высота здания — 30 м; вместимость — 300 прихожан. Вокруг храма запланировано мощение, а также строительство автостоянки с твёрдым покрытием для «маломобильных групп населения и спецтранспорта». В плане работ есть развитие коммунальных сетей (тепло-, водо- и электроснабжения, канализации)[1]. При этом в ходе проведённых в 2012 году публичных слушаний площадь храмовой застройки была указана многократно выше — 0,7 га. Таким образом, формально в ходе публичных слушаний был согласован именно этот проект. На момент начала строительства законность публичных слушаний оспаривалась[15].
В то же время на сайте Фонда «Поддержки строительства храмов города Москвы», финансирующего программу «200 храмов», указана информация о храме не на 300, а на 500 прихожан[32]. Так как территория многих парков Москвы до настоящего времени не поставлена на кадастровый учёт, в том числе территория парка Торфянка, это формально позволяет городским властям выделять из озеленённых территорий парков участки под застройку капитальными строениями[12].
Правовые основания для строительства храма
К началу конфликта документы на строительство имелись (постановление правительства Москвы от 30 апреля 2013 года, ордер ОАТИ от 3 июня 2015 года, ГПЗУ, договор аренды земельного участка, решение Бабушкинского суда от 1 июня 2015 года о законности выделения земли и строительства храма)[33].
Развитие событий
Парк «Торфянка» стал зоной масштабного противостояния, вызванного строительством православного храма[2]. Под храмовый комплекс выделен участок площадью 0,2 гектара[1][4] (то есть 20 соток[34]), что составляет 1,2 % от формальной площади парка[прим. 1]. На деле в площадь 16,6 га входит пруд «Торфянка», обветшавший комплекс Экспериментально-технической швейной фабрики Мособлсовнархоза[35] и т. п. Площадь юго-восточной части парка, отделённой от остальной территории 2-й Напрудной улицей, составляет 6,3 га.[1]
Предыстория конфликта
Началу строительства храма предшествовали публичные слушания, проведённые 16 января 2012 года[36][37][38], и выход постановления московского правительства от 30 апреля 2013 года, изменившего границы так называемых природных комплексов[прим. 2].
Противники строительства храма в парке «Торфянка» утверждают, что публичные слушания проходили незаконно, поскольку местных жителей плохо оповестили об их проведении[4][прим. 3].
По информации журнала «Сноб», за полтора года до начала открытого противостояния (то есть в конце 2013 года) жителями Лосиноостровского района была получена информация о строительстве в парке «Торфянка». Противники строительства отправили запросы в управу и префектуру. Активисты встретились с префектом округа и главой управы района, которые сообщили, что стройка законна, и тогда последовало обращение в прокуратуру, которая признала наличие нарушений в ходе проведения слушаний. Обращение в суд о признании слушаний незаконными поначалу к успеху не привело: Бабушкинский суд отказал, поскольку истёк 30-дневный срок с момента их проведения[39].
Рассмотрение в Бабушкинском районном суде состоялось 1 декабря 2014 года. Противники строительства храма обжаловали его решение в Московском городском суде, который в апреле 2015 года вернул дело на районный уровень для пересмотра[40].
К началу конфликта документы на строительство имелись[33].
Начало конфликта (июнь 2015 года)
Строительство в рамках программы РПЦ «200 храмов»[2][39] началось 18 июня 2015 года[2].
Уже на следующий день после начала работ стройплощадку окружили около 100 местных жителей, рядом с ней установили тенты и палатки, а на столбах, заборах и в почтовых ящиках округи развернулась агитация: появились самодельные листовки, призывавшие к протесту[2].
Напротив зоны строительства защитники парка организовали стихийный круглосуточный лагерь с целью не допустить заезда строительной техники и завоза материалов[41].
На подмогу протестующим прибыли представители различных оппозиционных движений левого и либерального направления[2].
22 июня события вышли на новостные ленты Интерфакса, который обнародовал сообщение о том, что местные жители, взбудораженные информацией о незаконном характере строительства (то есть о незаконности и нарушениях при выдачи разрешительных документов, не имевшей правовых оснований), устроили митинг и заблокировали въезд строительной техники, вследствие чего православные добровольцы стали вручную готовить площадку под храм[6].
24 июня (обращение Патриарха Кирилла)
24 июня 2015 года Патриарх Кирилл через официальный сайт Русской православной церкви обратился к сторонам противостояния и призвал их «к отказу от конфронтации и к мирному, цивилизованному урегулированию всех противоречий». Во избежание провокаций и возможных столкновений он призвал верующих не приходить на предполагаемое место возведения храма и попросил противников строительства пойти на аналогичный шаг[2]. Кроме того, он признал необходимым «дождаться судебного решения», выразив надежду все существующие разногласия преодолеть в правовом поле[8].
25 июня («народный сход»)
На следующий день, 25 июня, имели место «народный сход» и «встреча с депутатами», в ходе которых Сергей Митрохин, председатель партии «Яблоко», объявил собравшимся о приостановке строительных работ по решению префекта — до вынесения решения суда[4]. Полиция провела задержания, и в число задержанных попали левые активисты, когда-то защищавшие Химкинский лес, представители «Яблока» и сторонник строительства храма Иван Катанаев[42].
Майоров сказал мне, что все палатки должны быть снесены, это приказ Собянина. Но полиция не трогает палатки и шатры сторонников стройки.
Как сообщил телеканал «Дождь», в этот же день полиция предприняла попытку разогнать протестующих против строительства[44]. По информации председателя партии «Яблоко» Сергея Митрохина, приказ о разгоне противников строительства храма дал лично начальник департамента безопасности мэрии Москвы Алексей Майоров, получив указания «сверху»[43] (см. врезку).
Конец июня
26 июня к православным активистам обратился епископ Подольский Тихон (Зайцев), викарий Патриарха Кирилла, который повторил призыв главы Русской православной церкви. Выразив надежду на судебное решение в пользу строительства храма, он добавил: «Если же даже будет решение обратное, примем, как от руки Божией»[45].
По сообщению «Московского комсомольца», к вечеру того же дня обстановка накалилась и почти дошла до драк, заговорили о провокаторах с чёрным сатанинским флагом и о подкинутых шприцах. К месту противостояния прибыла полиция и произвела задержания[11].
Развитие конфликта (июль—август 2015 года)
Как сообщила 1 июля интернет-газета Znak.com, обе стороны последовали призыву Патриарха Кирилла, но лишь частично: на конфликтной территории остались небольшие «дозоры», призванные внимательно наблюдать за действиями друг друга[46].
4 июля (субботник)
4 июля в парке Торфянка участники движения «Сорок сороков» и прихожане храма Казанской Иконы Божией Матери на Торфянке провели субботник: «около 50 человек вместе с детьми обошли весь парк и собрали 30 больших мешков с мусором»[47].
6 июля (судебное заседание)
У здания Бабушкинского районного суда, где должен был решаться вопрос о возведении церкви, состоялась акция с участием более ста православных верующих[48]. Заседание суда под председательством судьи Вахитовой[49] состоялось по иску Лебедева и Никитина об отмене результатов публичных слушаний[38] и было отложено «для ознакомления вновь введенных лиц с материалами дела»[37][38].
Таковыми стали Николай Пивоваров (представитель жителей Лосиноостровского района, выступающих за строительство храма), а также Александр Хомяков, Антон Сорвачев и Вера Захарина (представители Патриаршего подворья в Лосиноостровской)[49]. Следующее слушание было намечено на 31 июля 2015 года, 9:30[38].
9 июля (митинг)
Вечером 9 июля в парке прошёл и мирно завершился митинг противников строительства храма. Согласно информации «Интерфакса», митинг собрал более ста человек[50] (согласно другим источникам — 500[51]). Выступающие критиковали столичную программу строительства православных храмов и выражали готовность к дальнейшему противостоянию, а также обещали сорвать строительство и других храмов[50]. Помимо местных жителей, присутствовали представители московских районов Измайлово, Перово[52], Зюзино, Гольяново и Коптево[53]. Некоторые протестующие, по их словам, прибыли из Санкт-Петербурга и Воронежа[50].
Организаторами митинга через социальные сети заранее согласовывались лозунги и повестка выступлений[54]. Хотя выступления противников строительства в основном были направлены против муниципальной власти, представители радикальных левых группировок выдвигали, по выражению журналиста Александра Егорцева, «и антицерковные лозунги»[52]. Принятая митингом резолюция выразила «недоверие мэру Москвы Сергею Собянину и префекту Северо-Восточного административного округа Валерию Виноградову»[53].
Одновременно проходила встречная акция: несколько сот человек во главе со священником у поклонного креста пели песнопения[50] (акафист Казанской иконе Божией Матери[52]), отвечая оппонентам пасхальным приветствием: «Христос Воскресе!»[50]. В акции участвовали казаки в форме и активисты движения «Сорок сороков»[52].
Жители расположенной поблизости многоэтажки закрепили на её крыше баннер с надписью «Лосинка — за храм», растянувшийся по всей высоте здания[50]. Растяжка была спущена в разгар митинга и вызвала недоумение протестующих и аплодисменты православных[52]. Защитники строительства ожидали провокаций[55], но оба мероприятия прошли без инцидентов, хотя ранее некоторые противники строительства храма распространяли в Интернете призывы снести ограждения и поклонный крест, установленные в парке[50][55].
Вторая половина июля
В этот период протесты вышли за границы парка. В частности, 16 июля 2015 года противники строительства храма в парке «Торфянка» вывесили вблизи Кремля, на Большом Каменном мосту, растяжку со словами «Путин, спаси Торфянку». Акция продлилась недолго — через несколько минут растяжку сняли[56]. 26 июля, по сообщению радиостанции «Свобода», на Красной площади были задержаны 15 активистов из числа противников строительства храма, одетых в футболки движения «За парк Торфянка!»[57]. В тот же день поступило сообщение об их освобождении после составления протоколов[58].
31 июля (судебное заседание)
Определение Бабушкинского районного суда г. Москвы о прекращении производства по делу о признании недействительными публичных слушаний, связанных со строительством объектов РПЦ МП в парке Торфянка
31 июля 2015 г.
г. Москва
Бабушкинский районный суд г. Москвы <…>
УСТАНОВИЛ:
Лебедев Е.И. и Никитин Д.С. обратились в суд с заявлением об оспаривании решений органов власти: протокола публичных слушаний, заключения о результатах публичных слушаний и о признании результатов публичных слушаний недействительным.
В судебное заседание заявители Лебедев Е.И. и Никитин Д.С., а также их представитель Медведев И.Р. явились, заявили письменное ходатайство о прекращении производства по делу на основании абз. 4 ст. 220 ГПК РФ. Пояснили суду, что потеряли интерес к судебному производству по настоящему заявлению, кроме того, указывая на проведение проверки Бабушкинской межрайонной прокуратурой г. Москвы. <…>
Гражданское дело № 02-5025/2015 по иску Евгения Лебедева и Дмитрия Никитина, жителей Лосиноостровского района, должны были начать рассматривать 31 июля в 9:30, однако и сторонники, и противники строительства храма в парке «Торфянка» стали подтягиваться к зданию Бабушкинского районного суда уже с 8 часов утра[59].
В итоге, по сообщению агентства Интерфакс, Бабушкинский районный суд Москвы прекратил производство по делу о строительстве храма в парке «Торфянка». По информации общины будущего храма, заявители (противники строительства храма) отозвали свой иск. Николай Пивоваров, представитель жителей Лосиноостровского района, выступающих за строительство храма, подтвердил агентству, что ходатайство заявителей о прекращении производства по делу было судом удовлетворено[60].
Заявители признали, что процедура проведения общественных слушаний по вопросу строительства храма на «Торфянке» была произведена без нарушения законодательства,
— цитирует Интерфакс слова адвоката, который добавил, что заявители, по словам их представителя, «могут инициировать новые судебные разбирательства»[50]. Хотя глава Ассоциации православных экспертов Кирилл Фролов прокомментировал действия заявителей иска словами: «они осознают его бесперспективность»[61], — депутат Бабушкинского района Марина Овчинникова заявила радиостанции «Эхо Москвы», что противники строительства храма готовят новое исковое заявление[62].
По информации портала «Православие и мир», основанием отказа от иска стало изменение проекта — уменьшение площади строительства с первоначальных 0,7 га (обсуждавшихся на публичных слушаниях в 2012 году) до нынешних 0,2 га. Соответственно, по мнению истцов, другая (меньшая) площадь означает, что речь идёт о другом проекте, который должен был обсуждаться на других слушаниях. В настоящий момент истцы, по их собственным словам, «потеряли интерес» к иску и поэтому отказываются от него[15][59].
Представители префектуры выступили против прекращения дела, поскольку такой поворот событий мешает выяснить: были или не были нарушены права заявителей в ходе публичных слушаний 2012 года[15][59].
Против прекращения дела выступил и представитель управы[59]:
Суд должен выяснить мотивы отказа истцов от искового заявления. Мы полагаем, что сейчас, говоря о каком-то «новом проекте», заявители вводят нас в заблуждение.
Вера Захаренко, представитель Патриаршего подворья — храма Казанской иконы Божией Матери, оставила вопрос об удовлетворении ходатайства истцов на усмотрение суда[59], хотя представители православной общины всё же хотели бы поставить точку в этом процессе, до конца разобрав законность слушаний[15][59].
См. также отклики и комментарии ниже.
4 августа
4 августа 2015 года депутаты Лосиноостровского муниципального округа Москвы предложили его жителям письменно высказаться о строительстве храма в парке «Торфянка» — с 4 по 7 августа[63] (в последующем срок подачи предложений продлили до 12 августа включительно[64]). Итоги были подведены 26 августа (см. ниже).
14 августа (снос палаточного городка)
14 августа поступила информация о том, что полиция снесла палаточный городок противников строительства храма[65]. Полицейские сослались на предписание департамента природопользования и на то, что протестующие вытаптывают траву[66]. Попытка воспрепятствовать сносу окончилась задержанием двух активистов, которые были доставлены в местное отделение полиции[67].
15 августа
15 августа 2015 года, в субботу, Интерфакс передал сообщение, что противники строительства храма через социальную сеть «Фейсбук» сообщили о нападении на Марину Овчинникову, депутата Бабушкинского района города Москвы. По информации, размещённой в социальной сети, нападение было совершёно накануне, в пятницу вечером, и к нему «могут быть причастны участники движения „Сорок сороков“», однако иными подтверждениями факта нападения Интерфакс не располагает[68]. Лидер движения Андрей Кормухин заявил Интерфаксу, что обвинения Овчинниковой — очередная попытка дискредитации «Сорока сороков»[69].
19 августа (празднование Преображения)
19 августа РИА Новости сообщило о праздновании в парке Торфянка Преображения Господня (Яблочного Спаса). Мероприятие, как объявил агентству координатор движения «Сорок сороков» Андрей Кормухин, было призвано примирить между собой сторонников и противников возведения храма в честь Казанской иконы Божией Матери, а также «продемонстрировать христианское миролюбие»[70].
У входа в парк «Торфянка» во время указанных мероприятий собралось несколько десятков противников строительства храма[71].
26 августа (итоги рассмотрения обращений)
| за строительство | против строительства | альтернативы (иные адреса) | |
|---|---|---|---|
| Всего обращений | |||
| |||
| |||
26 августа на странице муниципального округа Лосиноостровский появилась информация о том, что предложения по поводу строительства храма рассмотрены[72].
В таблице дается число обращений за строительство, против строительства и с альтернативными адресами строительства.
Помимо того, имеется 24 обращения об участии в заседании Совета депутатов муниципального округа. По результатам анализа предложений граждан депутаты муниципального округа Лосиноостровский направили соответствующее письмо в адрес префекта Северо-Восточного административного округа[72].
3 сентября (интернет-голосование)
3 сентября 2015 года Интерфакс сообщил, что голосование по вопросу об альтернативном участке под размещение храма развернулось в рамках интернет-проекта «Активный гражданин». Управа Лосиноостровского района получила 227 предложений от граждан с вариантами расположения нового храма, из которых муниципальные депутаты выбрали пять самых популярных и удобных для жителей адресов, однако две из них оказались заняты.
Строительство возможно на трёх площадках: около железнодорожной станции Лосиноостровская (по Анадырскому проезду), на участке по адресу улица Летчика Бабушкина, дом 42 и около супермаркета по адресу Изумрудная улица, дом 3[18].
Результаты голосования стали известны в октябре 2015 года: большинство голосов было отдано за первый вариант. В свою очередь, градостроительно-земельная комиссия Москвы согласилась с решением выделить новый земельный участок под храмовое строительство по адресу: Анадырский проезд, владение 8[19]. С точки зрения транспортной доступности новое место под размещение храма привлекательнее «Торфянки», поскольку расположено в непосредственной близости от Лосиноостровской[73].
25 мая (заявление в СК иерея Олега Шалимова)
Как сообщила адвокат Оксана Михалкина, иерей Олег Шалимов после повторного нападения со стороны противников строительства подал заявление о проверке в Следственный комитет. Адвокат усмотрел в действиях протестующих агрессию и «признаки экстремизма, потому что их активные действия и оскорбления направлены на разжигание ненависти и вражды» по религиозному признаку[74].
29 августа 2016 года (попытка сломать поклонный крест)
По сообщению НТВ, ночью группа неоязычников попыталась сломать крест, установленный на конфликтной территории, но была задержана полицейскими и бойцами Росгвардии. Среди задержанных были неоязычник Евгений Лебедев, а также Владислав Кузнецов, помощник депутата Госдумы от КПРФ Александра Потапова[75].
14 ноября (обыски и задержания активистов протестного движения)
Утром 14 ноября 2016 года сотрудники полиции пришли с обысками к ряду активистов-защитников парка «Торфянка». Несколько человек после обысков задержали. По сообщениям Би-Би-Си, были задержаны 13 активистов[76]. Руководитель общественного движения «Сорок сороков» Андрей Кормухин связал обыски и задержания с рядом поданных заявлений о неправомерности действий участников инициативной группы[77]:
Неправомерные действия, которыми занимались задержанные, были направлены на травлю как прихожан, так и настоятеля храма иерея Олега Шалимова, который несколько раз подвергался нападениям у парка.
4 декабря (задержания активистов протестного движения)
Как сообщает ТАСС со ссылкой на адвоката движения «Сорок сороков» Оксану Михалкину, полиция задержала в парке «Торфянка» около 10 человек, в том числе нескольких активистов партии «Яблоко», а также неоязычников, пытавшихся сорвать молебен у поклонного креста на том месте, где предполагалась постройка храма[78].
Истоки конфликта
Мнения сторонников строительства
Согласно заявлению епархиального совета Московской городской епархии, источник конфликта в парке «Торфянка» — желание приостановить храмовое строительство «ложью и подменой фактов», а не забота о парках[79].
Архиепископ Егорьевский Марк (Головков), председатель правления Фонда поддержки строительства храмов города Москвы, дал сходный комментарий: «…ситуация глубже, чем просто спор между местными жителями о сохранении парка „Торфянка“. Людям, подстрекающим жителей выступать против храма, не нужен парк. В большинстве своём они и не живут в этом районе. Это люди с определённой идеологией…»[80]. В последующем, уже в августе 2016 года, будучи митрополитом Рязанским и Михайловским, он же выразил мнение, согласно которому «Торфянка — это авангард злых сил» и добавил: «Приход Казанского храма как бы оттягивает на себя часть деструктивной воли. Ситуация на Осташковском проезде — лакмусовая бумажка для темных сил, действующих против православного народа. Это некий форпост, который показывает, до какой степени остервенения могут дойти антицерковные объединения»[3]. В 2017 году он отметил, что «„Торфянка“ — исключительный случай. Там собрались люди со всей Москвы, насколько мне известно, при поддержке в том числе из-за рубежа»[81]
Похожую точку зрения высказал Юрий Шубин, по версии которого «Торфянка» стала своего рода генеральным сражением, в которое противниками храмового строительства были вложены максимальные средства для достижения победы. Достигнутый успех, по его мнению, впоследствии предполагалось тиражировать, однако добиться своей цели этой группе не удалось. В то же время сосредоточение антихрамового протеста на «Торфянке» позволило беспрепятственно вести храмовое строительство «даже там, где раньше было мощное сопротивление». В качестве примеров он упомянул храм Преподобного Сергия Радонежского на Ходынском поле, а также строительство храмов на улице Фёдора Полетаева, Лодочной улице, площади Викторио Кодовильи, в Измайлове, Останкине, Очакове, Отрадном и Головине[82].

По мнению Владимира Ресина, куратора программы строительства православных храмов в Москве, высказанному им ещё в 2014 году, практика показала, что «конфликты, которые возникают вокруг строительства храмов, можно поделить на две части»: в первом случае жителей не устраивает выбор участка под строительство храма, во втором случае «конфликт раздувается из ничего активистами, которые даже не являются жителями района»[83][84].
Нам бы не хотелось, чтобы в парке был храм: это колокольный звон, отпевания и свадьбы. Расстояние до ближайшего дома — менее 100 метров. Каково здесь будет жить людям? На сколько упадёт стоимость их квартир?
местный житель, противник стройки[85]
Владимир Легойда, комментируя Интерфаксу события в парке Торфянка, отнёс их ко второй группе[86]:
…конфликт там откровенно на пустом месте: если посмотреть проект, только 1 % территории парка выделяют под храмовую территорию, ни одного дерева срубать не надо.
По мнению Легойды, противостояние в парке «Торфянка» во многом связано с деятельностью одних и тех же лиц, систематически устраивающих провокации во многих местах строительства храмов. Таким образом, оно «лишь выглядит как протест местного населения», будучи по сути замаскированным проявлением деятельности антицерковных сил, настроенных на борьбу с возведением храмов «по всей Москве и по всей России». В то же время он признал, что в рядах протестующих были и есть настоящие жители окрестных домов, которых он считает «жертвами страшилок про застройку в несколько гектаров, вырубку половины парка, покойников, которые непрерывным потоком будут доставляться в храм на отпевание»[86].
Негативные ожидания, в том числе связанные с отпеваниями, действительно свойственны (или были свойственны) некоторым жителям Лосиноостровского района (см. врезку).
По мнению публициста Егора Холмогорова, конфликт спровоцировали власти, которые выделили для строительства участок в неподходящем месте: «парк не самый удачный выбор для строительства. Гораздо лучше подошел бы любой обширный двор или площадка у метро. Да снесите лишнюю палатку с шаурмой!.. <…> разрушать ради храма парковую среду — один из верных способов добиться того, чтобы церковь воспринималась местными жителями не как элемент малой родины и патриотизма, который формируется по принципу „за очаги и алтари“, а как вторжение чего-то чужеродного»[87].
Ещё в 2014 году, задолго до нынешнего конфликта, портал «Православие и мир» сообщал о наличии отработанной схемы протестов против строительства храмов, в которую входят[88]:
- дезинформирование жителей ближайших домов (например, о размере выделяемой под храм площади) и сбор подписей против строительства;
- рассылка однотипных обращений в органы власти;
- массовые жалобы на «разжигание вражды» в официальные органы;
- письма депутату Московской городской думы, отрицательно относящемуся к строительству храмов.
Мнения противников строительства
Помощник депутата Мосгордумы Николая Зубрылина из фракции КПРФ Владислав Кузнецов говорит, что местные жители против любого капитального строительства на территории парка[89]. Строительство церквей на озелененных городских территориях, на средства фонда «программы „200 храмов“, поддерживаемой Правительством Москвы[90], — это удобная возможность „распила“ денег фонда близкими к РПЦ строительными компаниями, считают в КПРФ[27].
Андрей Быстров, координатор движения „За парк“, утверждает, что, во-первых, жители протестуют не против строительства храмового комплекса (и, тем более, не против веры), а против его возведения на территории парка. Он считает, что, помимо угрозы усечения конкретной „зелёной зоны“, создается опасный прецедент (если один раз можно урезать парк и построить капитальное строение, то это допустимо делать снова и снова). И, во-вторых, согласно его утверждению, на одной стороне выступают местные жители, защищающие своё „зелёное“ пространство в мегаполисе, а на другой — пригнанные властью православные активисты и т. д., большинство из которых к району отношения не имеет[89] (см. также информацию о сторонниках и противниках строительства).
Защитница парка Тамара Мальсагова считает, что расположенный рядом с „Торфянкой“ Бабушкинский парк имеет существенный недостаток[91]:
…если туда идешь с ребёнком, ты оставишь минимум 1,5 тысячи, потому что ребёнок хочет покататься, хочет ваты, хочет мороженого». Постоянно запрещать тоже неправильно. А «Торфянка» — природный парк, там ребёнок может побегать по траве, покормить уток, посмотреть, как соседи ловят рыбу.
Местные жители из числа противников строительства также утверждают, что в Северо-Восточном административном округе храмов больше, чем поликлиник (по их утверждениям, храмов 63). Кроме того, они ссылаются на запрет строительства в парках; на своё нежелание просыпаться под звон колоколов (ближайший дом расположен менее чем в 100 метрах от предполагаемого места строительства) и видеть в парке нищих, цыган и попрошаек (см. также выше); а также на желание загорать, не оскорбляя своим видом чувств прихожан храма[91].
Наконец, одним из аргументов является тот факт, что менее чем в двух километрах от парка[92] расположена территория храмового комплекса в честь преподобного Серафима Саровского[93], который в 2012 году назвали «самым масштабным строительством в истории Программы-200»[94], в 500 метрах от парка (Анадырский пр-д, вл. 8) построен храм-часовня Святителя Макария[95][96].
Мнения местных властей
Префект СВАО Валерий Виноградов заявил о наличии в рядах противников строительства лиц, не заинтересованных в мирном решении конфликта[97]:
Дело в том, что среди противников строительства есть люди, не заинтересованные в мирном решении конфликта. Они просто используют эту ситуацию в своих интересах — политических и неполитических. Эти люди пытаются раздуть конфликт, вывести его на городской, федеральный уровень, хотят сделать слово «Торфянка» нарицательным.
На взгляд префекта, обострению ситуации весьма способствовало совпадение по времени начала строительства с возвращением на повторное рассмотрение из Мосгорсуда в Бабушкинский районный суд иска о признании слушаний незаконными[97].
Иное
Имеется точка зрения, которую выражает Александр Верховский, глава информационно-аналитического центра «Сова». Он полагает, во-первых, что местные жители очень часто негативно относятся к любому новому строительству, будь то церковь или торговый центр. Далее, полагает он, деление конфликтов на две группы весьма условно, поскольку недовольство местных жителей строительством всё чаще побуждает их находить и принимать поддержку общественных и политических активистов. Тем самым конфликт вольно или невольно идеологизируется[83].
Вовлечённые стороны
Местные жители присутствуют по обе стороны возникшего противостояния[4][42], причём известен пример того, как давние подруги оказались разведены по разным лагерям[42].
| Сторонники строительства | Противники строительства |
|---|---|
| • местные жители[4] | • местные жители[2][4] |
• представители православного движения «Сорок сороков»[2][4][39]
| • представители партии «Яблоко»
|
| • казаки[52] | • депутаты от КПРФ (в том числе Потапов)[4] |
| • Русская православная церковь[2][4] | • анархистское движение «Автономное действие»[2] |
• радикальная организация «Божья Воля»
| • движение «Левый фронт»[2]
|
| • ЛГБТ-активисты[99][46] и другие[99] | |
Противники строительства
По состоянию на июнь 2015 года ряды противников строительства, выступавших под лозунгом защиты парка, включали молодёжь, родителей с детьми, пенсионеров и многочисленных собаководов[4].
Как полагает журналист Александр Егорцев, обеспокоенность владельцев собак была обусловлена совпадением места предполагаемого строительства с привычным местом выгула этих животных, а возможное нарушение привычного статус-кво (негласного межевания территории парка между детьми и собаками) привело к тому, что обеспокоенность охватила и других жителей района[4].
Сложившейся ситуацией воспользовались представители двух партий, КПРФ и «Яблока»[4]. Именно их неожиданный союз стал главной движущей силой противостояния на «Торфянке» в июне—июле 2015 года. Депутат Госдумы от КПРФ Александр Потапов, депутат Мосгордумы от КПРФ Николай Зубрилин, лидер «Яблока» Сергей Митрохин приняли заметное участие в акциях протеста[99]. «Яблочники» выступили под лозунгом: «Мы не против храмов, мы против храмов в парках!»[100].
Имеются, однако, и сведения о расколе в КПРФ «по линии храма»[прим. 8].
По сообщению журналиста Александра Егорцева, к двум главным силам примкнули анархисты, троцкисты, нацболы, неоязычники, представители националистических и экологических движений, а также ЛГБТ-активисты[99]. Об участиях в противостоянии анархистского «Автономного действия» и активистов «Левого фронта» сообщалось и в «Независимой газете»[2], факт приезда представителей ЛГБТ-движения корреспонденту издания Znak.com подтвердили местные жители[46].
В группе противников строительства «Парк Торфянка», зарегистрированной в социальной сети «Фейсбук», также присутствовали активисты протестных движений: активистка «Яблока» Марина Веригина, жительница района Куркино Наталья Малкинене, сторонник Навального Никита Бакулин[2].
В то же время местные жители сообщили корреспонденту издания Znak.com об отсутствии интереса к политике. Согласно наблюдениям журналиста, наиболее политизированная тема дискуссий — повышение тарифов ЖКХ[46].
В митингах лета 2015 года на стороне противников строительства участвовали представители московских районов Измайлово, Перово[52], Зюзино, Гольяново и Коптево[53], а также жители Санкт-Петербурга и Воронежа[50].
Сторонники строительства
Взаимоотношения сторон
О тех или иных проявлениях агрессии со стороны оппонентов сообщают обе стороны конфликта — как сторонники храма[6][74][3], так и его противники[101][102].
Реакция госструктур на акты агрессии
В конце августа 2016 года попытка сломать поклонный крест, установленный на конфликтной территории, привела к задержанию протестующих полицейскими и бойцами Росгвардии[75].
В ноябре 2016 года сотрудники полиции пришли с обысками к ряду активистов протестного движения и задержаниям некоторых из них[76]. Андрей Кормухин, руководитель общественного движения «Сорок сороков», связал действия полиции с рядом поданных заявлений о неправомерности действий участников инициативной группы[77]. Обыски прошли в рамках уголовного дела, возбуждённого в отношении неустановленного круга лиц по статье 148 УК РФ, часть 1 и часть 3 (оскорбление религиозных чувств верующих; незаконное воспрепятствование деятельности религиозных организаций или проведению богослужений)[103].
В декабре 2016 года полиция задержала в парке около 10 человек за попытку сорвать молебен у поклонного креста[78].
- Заявления протестующих
Протестующие, в частности, заявляли о склонности к агрессии представителей движения «Сорок сороков», которое выступило в поддержку строительства. Сообщалось о нападениях активистов движения «Сорок сороков» на противников строительства, возбуждены дела об административных правонарушениях.[95]. Например, 15 августа 2015 года противники строительства храма в парке «Торфянка» через социальную сеть «Фейсбук» распространили информацию о совершённом накануне нападении на Марину Овчинникову, депутата Бабушкинского района Москвы, и возможной причастности к нему представителей движения[68].
Иные представители протестующих в августе 2015 года утверждали, что представили движения «ведут себя провокационно, но не применяют открытое насилие», поскольку «не хотят допускать крайних эксцессов»[104].
Первый заместитель председателя комитета Госдумы по делам национальностей Валерий Рашкин (фракция КПРФ) не ограничился обвинениями в адрес движения, а в августе 2015 года со страниц «Парламентской газеты» обратился к руководству ФСБ с депутатским запросом о деятельности движения «Сорок сороков»[105].
В запросе, среди прочего, было сказано, что движение «использует в своей фирменной символике и для своего обозначения аббревиатуру „СС“». Депутат, кроме того, утверждал, что оно «является радикальным формированием, занимающимся боевой подготовкой своих членов», что многие его члены придерживаются неонацистской идеологии и что деятельность движения и его членов нарушает законодательство, подпадая под действие ряда статей Уголовного кодекса России, а также призвал к ликвидации движения[105][прим. 9].
Через несколько дней в заочную полемику с Рашкиным со страниц той же газеты вступил координатор движения Андрей Кормухин, который, в частности, посчитал неубедительными обвинения в неонацизме, ссылаясь при этом на многонациональный характер движения[106].
Итоги и сам факт рассмотрения запроса депутата Рашкина освещения не получили[107].
- Заявления сторонников строительства
Сторонники храмового строительства также заявляли об актах агрессии[103], в том числе против иерея Олега Шалимова в мае 2016 года (одна из женщин, протестующих против строительства, даже его пнула) и поданном им заявлении о проверке в Следственный комитет[74].
Правовые вопросы
Судебное решение: отклики и комментарии
Решение суда от 31 июля 2015 года воспринимается крайне разноречиво: движение «Сорок сороков» через «Твиттер» назвало его победой борцов за храм[108], в то время как интернет-газета «Новый День—Новый Регион» расценила его ровно противоположным образом[109][прим. 10]. Денис Гончаренко, активист движения противников строительства храма в парке «Торфянка», так откликнулся на судебное решение: «мы нашли новые фальсификации в документах по слушаниям». Его соратница по имени Наталья пояснила, что новые фальсификации — это отличающийся от первоначальных 0,7 га размер земельного участка и его иное местоположение. По её словам, «префект в 2014 году самостоятельно перенес стройку в другое место и поменял размер земли»[7].
Однако, нынешние 0,2 га предусмотрены Постановлением Правительства Москвы от 30 апреля 2013 года[1].
Кроме того, согласно публикации Александра Егорцева, результатом слушаний 2012 года было решение префектуры о выделении для строительства храма 0,7 га парковой территории, однако территорию, выделяемую под храм, уменьшило (до 0,2 га) Правительство Москвы, издавшее соответствующее постановление[59]. Понятно, что мы имеем две совершенно разных версии событий.
Позиция противников строительства
Адвокат Иван Медведев объяснил решение отозвать иск поступлением информации о том, что Бабушкинская межрайонная прокуратура возобновила проверку законности общественных слушаний о строительстве храма[40][прим. 11]:
Прокуратура уже вставала на нашу сторону в сентябре 2014 года. Тогда они лишь признали незаконными слушания, но не сделали выводов и никому не указали на нарушения. Теперь же они должны конкретизировать свою позицию.
Он также сообщил «Коммерсанту», что в июле 2015 года в управление внутренних дел СВАО было направлено заявление о возбуждении уголовного дела «по факту подлога материалов общественных слушаний»[40].
Позиция сторонников строительства
Настоятель местной православной общины священник Олег Шалимов 31 июля 2015 года сообщил ТАСС, что строительство храма может быть продолжено: «Ждём решения священноначалия». Отказ оппонентов от иска он расценил как свидетельство «неуверенности в своих силах» и добавил, что разъяснительная работа сторонников храма даёт плоды: «многие собаковладельцы и семьи с детьми, которые раньше протестовали, думали, что храм повредит парку и, например, не будет места для прогулок, теперь нас поддерживают»[110].
Пресс-секретарь Патриарха Московского и всея Руси диакон Александр Волков так прокомментировал итоги заседания Бабушкинского суда[17]:
Хотя решение суда, состоявшегося 31 июля 2015 года, фактически подтвердило отсутствие правовых препятствий для строительства храма в данном месте, следуя своей миротворческой миссии, епархия города Москвы будет готова рассмотреть возможность строительства в другом месте — в том же микрорайоне, в пределах шаговой доступности.
По заявлению Андрея Кормухина, «противники строительства храма попытались сохранить хорошую мину при плохой игре» и отозвали иск, осознав, что проигрывают процесс. Удовлетворение подобным решением, которое он выразил, соседствует у Кормухина с опасениями продолжения попыток затормозить строительство храма через прокуратуру и посредством использования «майдановских» технологий для сохранения напряжения и конфликта в Лосиноостровском районе[40].
Позднее, 19 августа 2015 года, РИА Новости сообщило о готовности движения «Сорок сороков», возглавляемого Кормухиным, рассмотреть другую площадку строительства храма. По словам Кормухина, препятствия для возведения храма отсутствуют, но строительство не начинается, поскольку Русская православная церковь «проявляет добрую волю», намереваясь совместно обсудить все возможные варианты[70].
Альтернативный участок
В результате голосования на платформе «Активный гражданин» в октябре 2015 года большинство голосов было отдано за вариант строительства храма на Анадырском проезде. В свою очередь, градостроительно-земельная комиссия Москвы согласилась с решением выделить новый земельный участок под храмовое строительство по адресу: Анадырский проезд, владение 8[19].
Действуя в соответствии с решениями Градостроительно-земельной комиссии города Москвы, Департамент городского имущества города Москвы оформил договор от 01.02.2016 за № М-02-608804 сроком на девять лет, предусматривающий безвозмездное пользование земельным участком с кадастровым номером 77:02:0016009:1934 (1 участок), на котором был возведён временный быстровозводимый храм-часовня, освящённый 28 апреля 2016 года[20].
5 апреля 2018 года Комитетом государственного строительного надзора города Москвы застройщику — Религиозной организации «Финансово-хозяйственное управление Русской Православной церкви (Московский Патриархат)» оформлено разрешение на строительство № 77-151000-016746-2018 объекта «Храмовый комплекс» по адресу: Москва, СВАО, Лосиноостровский, Анадырский пр., вл. 8 (участок 2) сроком действия до 05.01.2019[24].
Таким образом взамен участка по адресу Москва, Осташковский пр., вл. 4 (парк «Торфянка») ФХУ РПЦ получило два участка по адресу Анадырский пр., вл. 8: участок 1 (кадастровый номер 77:02:0016009:1934), где с апреля 2016 года функционирует храм-часовня, и участок 2 (кадастровый номер 77:02:0016009:1935), на который оформлена вся разрешительная градостроительная документация, что позволяет начать строительство капитального храма. 17 апреля 2018 года Департамент городского имущества города Москвы отправил в адрес ФХУ РПЦ проект соглашения о расторжении договора безвозмездного пользования на земельный участок в парке «Торфянка».
По состоянию на конец июня 2018 года ФХУ РПЦ участок в парке «Торфянка» не освободило[111][112]. На середину августа 2018 взятые на себя обязательства освободить парк после получения разрешения на строительство храма на альтернативном участке РПЦ по-прежнему не выполнила[12].
Прочее
Информационное поле
Освещение в СМИ
Конфликт вокруг строительства храма в парке «Торфянка» стал объектом пристального внимания информационных агентств, газет, радиостанций, иных средств массовой информации. Его освещали
- информационные агентства:
- радиостанции:
- газеты и журналы:
- интернет-издания:
- и прочие.
В 2015 году среди противников строительства храма в парке «Торфянка» распространялись сведения[121]:
- о затяжном характере строительства, подводе коммуникаций, вырубке деревьев, рытье траншей;
- о появлении беспокоящих факторов в виде бомжей, попрошаек, цыган, колокольного звона и отпевания покойников прямо под окнами;
- о расширении территории храмового комплекса и ухудшении экологической обстановки.
Среди этих сведений важное место занимала возможность расширения территории храмового комплекса за пределы выделенного участка[4].
В частности, представитель протестующих, который назвал себя помощником депутата от КПРФ, заявил журналисту Александру Егорцеву о том, что существуют «„секретные документы“, согласно которым православные собираются под храмовую территорию забрать весь парк до конца», однако журналист не получил ни копий подобных документов, ни иных подтверждений. Настоятель строящегося храма, священник Олег Шалимов, опроверг эту информацию как недостоверную и предложил знакомиться с проектной документацией[4]. Более того, в ходе судебного заседания 31 июля 2016 года она не была подтверждена[15][99].
По сообщению Александра Егорцева, которое датировано 26 июня 2015 года, «разрешительные документы и схема парка (участок для храма выделен красным цветом) были вывешены на стенде для всеобщего обозрения». Однако протестующие не стали проверять слухи, и «народное возмущение нарастало как снежный ком»[4].
Беседуя с корреспондентом интернет-газеты Znak.com, участник протестов («красивая девушка Даша») поделилась сведениями о том, что огороженная сравнительно небольшая площадка впоследствии будет значительно расширена. Согласно её словам, «управа собирается передать Православной церкви 0,7 га земли», на котором, как она утверждала, помимо храма, будут построены «столовая для неимущих и даже гостиница для паломников»[46].
Цифра 0,7 га в ходе судебного заседания 31 июля 2015 года не получила подтверждения[15][99].
Комментируя ситуацию, отдельные журналисты выражают мнение, что создавшаяся ситуация не уникальна для парка «Торфянка» и Лосиноостровского района, а воспроизводится в различных районах Москвы, включая Гольяново и Косино-Ухтомское. Кроме того, они характеризуют информацию противников строительства как «нелепые пугалки, повторяющиеся слово в слово»[122].
Корреспондент газеты «Культура» в этой же связи считает, что существует единая для разных районов методика вовлечения жителей в протест[115].
РБК приводит тактику продвижения строительства церквей на публичных слушаниях, которую ведут участники движения «Сорок сороков». Для голосования на публичные слушания в районах, где планируется выделение городской земли под строительство церкви, участники движения (несколько тысяч человек) собирают поддержку из своих и местных православных активистов, путём объявлений в группе движения во «Вконтакте»[90].
Экологические вопросы
Елена Ибрагимова, пресс-секретарь Владимира Ресина, комментируя сложившуюся конфликтную ситуацию и конкретный размер выделяемой под строительство площади (0,2 га), отозвалась таким образом: «Говорить об исчезновении парка с учётом цифр некорректно. Это фактически не соответствует действительности»[39].
Настоятель священник Олег Шалимов, комментируя решение суда от 31 июля 2015 года, также напомнил, что для храма Казанской иконы Божией Матери был выделен участок, площадь которого составляет всего 1 % общей площади парка, и добавил: «Ни одного дерева срубить не придётся»[110].
Данное обстоятельство (отсутствие вырубки деревьев) также иногда подвергают критике[прим. 12].
По мнению активиста «Русской народной линии», Юрия Шубина, на митинге 9 июля 2015 года борьба против застройки парков, несмотря на экологические лозунги, была лишь маскировкой для «храмофобов». В подкрепление этого тезиса он указывает на то, что[120]
- «все места, о которых говорилось на митинге, — это места возведения храмов», объекты иных типов (светские) у митингующих интереса не вызвали;
- ряд перечисленных митингующими точек не имеет отношения к паркам и скверам (яркий пример — бывший аэродром на Ходынском поле, где храм строится на пустыре);
- утверждения о том, что протест не направлен против храмов и Церкви, а вызван всего лишь неудачным выбором места, чередовались с требованиями «полной отмены» строительства храма.
«Тема защиты окружающей среды не оставляет равнодушным практически никого… Поэтому для левых экологическая борьба является… крайне удобным способом агитации и атаки системы», — отметил в своё время упомянутый ранее участник протестов Василий Кузьмин из «Левого фронта»[2].
Кроме того, согласно обнародованному в июне 2016 года заявлению муниципального депутата Марины Овчинниковой, примерно 0,3 гектара парковой территории планируется отрезать под строительство проезда, но общественные слушания по данному проекту оставили протестующих безучастными: «Ни один из местных жителей, протестующих против строительства храма, не пришел на слушания по этому проекту. Все были сосредоточены на „горячей точке“. Никто не опротестовал строительство проезда»[123].
Егор Холмогоров отмечал: «Любопытный нюанс — очень трудно найти в сегодняшней Москве борцов со строительством многоэтажек, уродливых торговых центров и прочих бизнес-монстров, убивающих экологию, инфраструктуру и создающих чудовищные пробки. А вот на борьбу с маленьким храмом слетелись политики федерального значения. Это всё, что нам нужно знать об искренности подобной борьбы. Церковь оказалась фактически „разрешённой целью“ имитации гражданского активизма»[87].
Проблемы «коммуникации»
Комментируя конфликт вокруг строительства, архиепископ Марк (Головков), куратор программы строительства 200 новых храмов на территории Москвы, высказал мнение, согласно которому «часто публикации в СМИ и блогах дают искаженную информацию о позиции Патриархии и православных верующих в целом». В качестве примера он назвал «статьи с заголовками „Церковь против парка“»[114]:
…если речь идет о выделении участка для строительства в каком-то парке, то обычно выделяется небольшая территория на окраине зелёного массива, чтобы там не было вырубки деревьев.
Владыка Марк признал наличие «проблемы коммуникаций Церкви с жителями»: «Иногда священники недостаточно проводят разъяснительную работу о будущем строительстве среди жителей»[114].
Пример успешных «коммуникаций», по словам архиепископа Марка, даёт храм на улице Берзарина, участок под который «был выделен практически на территории гаражного кооператива». Эту крайне конфликтогенную ситуацию сумел разрешить настоятель общины, священник Дмитрий Крутов, который познакомился со всеми членами кооператива и «нашёл со всеми общий язык», что позволило соорудить временный деревянный храм (и подготовиться к строительству капитального)[114].
В декабре 2015 года Патриарх Кирилл в своем докладе на Епархиальном собрании Москвы призвал настоятелей строящихся храмов широко информировать местных жителей о планах строительства и привёл как пример ситуацию на «Торфянке»[124]:
Правда была целиком и полностью на стороне верующих: все разрешительные документы были получены. Люди ждали новый храм. Однако была заряжена такая мощная политическая и информационная атака на местных жителей, что община оказалась к этому не готова, и часть общественного мнения развернулась против создания храма.
По мнению Патриарха Кирилла, из полученного опыта следует извлечь урок: «Нужно работать на упреждение»[124].
Аналогии
Как отмечал корреспондент Би-би-си Виктор Нехезин, по состоянию на середину 2015 года московские власти в рамках поддержки программы РПЦ «200 храмов» выделили около 150 участков для строительства, и в двадцати случаях строительство было отменено из-за протестов местных жителей[83].
Это далеко не первый конфликт, связанный со строительством храмов в Москве. За последние годы против точечной церковной застройки выступали жители Печатников, Хорошёва-Мневников, Царицына, Зеленограда, Марьина, Гольянова, Зябликова, Восточного Дегунина, Гагаринского района, Строгина, Измайлова и Куркина[125].
Владислав Мальцев, журналист «Независимой газеты», рассматривает события как «заурядный конфликт районного масштаба», который, тем не менее, выбился в первые ряды новостей (см. врезку) и приобрёл общемосковский характер. Он проводит параллели между парком «Торфянка» и стамбульским парком «Гези», защита которого от застройки в 2013 году сплотила протестный электорат в Турции[2]. По его мнению, в условиях «отсутствия реальной политической повестки» парк «Торфянка» на окраине Москвы для российских оппозиционеров «стал и символом противостояния власти, и новым „оккупаем“, и не опробованным ранее форматом мобилизации протестных настроений».
- «Майдан»
«Лосиноостровский „майдан“» — так назвал свой материал о противостоянии на «Торфянке» журналист Александр Егорцев[4]. «Рядовой вопрос о строительстве храма в очередном „спальном районе“ усилиями обеих противоборствующих сторон превращен в „майдан районного масштаба“», — пишет Дарья Менделеева в репортаже о судебном заседании, состоявшемся 6 июля[118].
Андрей Малосолов считает, что «майданные» аналогии не ограничиваются внешним сходством: «На местном уровне идет обкатка мини-технологий протеста с палатками, организованным завозом людей и продуктов питания…»[119]
Юрий Шубин, также использующий образ «майдана», характеризует борьбу со строительством храма в парке «Торфянка» как «централизованный антицерковный и антироссийский протест», лишь прикрывающийся экологическими лозунгами[120].
Об использовании высокопоставленными членами КПРФ технологий «майдана», манипуляциях и обмане участников протестного движения в начале 2016 года заявила Марина Овчинникова, депутат муниципального собрания Бабушкинского района, бывший член КПРФ и бывший участник протестного движения.
Возможные пути преодоления конфликта
В разное время выдвигались различные мнения о путях преодоления конфликта. В частности:
1. По мнению иеромонаха Димитрия (Першина), выходу из конфликта могли бы содействовать предельная правовая прозрачность, готовность к диалогу и компромиссам, а также обустройство прилегающей территории (для детей, собаководов, и, возможно, для подростков и молодёжи)[34]. В случае, если строительство предварить возведением объектов для детей, собаководов и молодёжи, утверждал иеромонах Димитрий, стала бы понятна несостоятельность опасений, что стройплощадка «расползётся по парку»[34].
2. Другой путь выхода из конфликта указал главный «яблочник» Сергей Митрохин: «если кому-то нужен храм, пусть строят его где-нибудь в промзоне»[4].
3. Диакон Александр Волков, пресс-секретарь Патриарха Кирилла, сообщил о готовности Московской городской епархии «рассмотреть возможность строительства в другом месте — в том же микрорайоне, в пределах шаговой доступности»[17].
- Подобные предложения высказывались и ранее: местная жительница из числа протестующих в беседе с Александром Егорцевым предположила, что перенос стройплощадки на другую сторону пруда мог бы помочь разрешить конфликт: «тут много таких, кто не против храма, только мы не хотим, чтобы его строили при входе в парк». Впрочем, прокомментировал эту инициативу журналист, в атмосфере ненависти и агрессии едва ли можно гарантировать невозобновление конфликта в случае подобного переноса[4].
4. Архиепископ Марк положительно расценил инициативу депутатов муниципального округа Лосиноостровский, пригласивших жителей к обсуждению альтернативных участков строительства (см. выше). В то же время он не исключил возможности того, что противостояние возобновится и на новом участке. По этой причине, по мнению владыки Марка, «все здравомыслящие люди должны объединиться, чтобы не допустить победы воинствующих храмоборцев»[80].
Пояснения
- Площадь парка составляет 16,6 га, как указано выше. Получаем: 1,2 % ≈ (0,2/16,6) × 100 %.
- См. раздел Официальный статус.
-
- Руководитель партии «Яблоко» Сергей Митрохин жёстко характеризует слушания как «подложные»:
Острейший социальный конфликт, разразившейся в Лосиноостровском районе, является результатом фальсификаций и халатного бездействия всей московской вертикали.
- См.: Сергей Митрохин: Теократия в парке Торфянка // Партия «Яблоко», официальный сайт, 26 июня.
- Юрист Николай Пивоваров, житель района «Лосиноостровский», представляющий интересы православной общины, с этим мнением не согласен, утверждая, что «публичные слушания были проведены абсолютно законно», и полагает, что «говорить о незаконности выделения земельного участка … не приходится».
- См.: Адвокат православной общины района «Лосиноостровский»: Публичные слушания о строительстве храма были проведены законно // Православие и мир, 08 июля 2015 г.
- Более того, после судебного заседания, состоявшегося 31 июля 2015 года, Н. Пивоваров сообщил: истцы (противники строительства храма) признали, что «процедура проведения общественных слушаний … была произведена без нарушения законодательства».
- См. ниже.
- В том числе жители других районов СВАО.
- Выпускник Государственного музыкального училища имени Гнесиных, композитор, отец 9 детей, родной брат певицы Ольги Кормухиной.
- См., например: Александр Кондратенко. Стражник храма // «Фома», № 5 (145), май 2015 г.
- В прошлом — один из лидеров фанатского движения московского «Спартака», известный также под прозвищем «Комбат». См., например:
- Григорий Студнев. Московские футбольные фанаты объединяются для поддержки Новороссии // Ридус, 19 марта.
- Юрий Дудь. «Европа скоро исчезнет. Развалится на части. Треснет по швам». Чем занимается самый известный фанат «Спартака» // Блог Юрия Дудя, 23 июля.
- В 2010 году — участник протестов против вырубки Химкинского леса. Вечером 26 июня 2015 года, по сообщению «Независимой газеты», был задержан на митинге в парке «Торфянка» в числе четырёх активистов «Левого фронта».
- См. цитируемую статью.
-
Несмотря на то, что местный актив КПРФ является одной из основных сил протеста, внутри партии немало и сторонников строительства. Одного из руководителей московского горкома КПРФ, который хотел высказаться в поддержку возведения церкви, не пропустили на митинг протеста.
.- См.: Андрей Гулютин. Сторонники строительства храма в Москве и местные жители готовы примириться // «Ридус».
-
- В цитируемой публикации указаны:
- статья 282 УК РФ — «Возбуждение ненависти либо вражды, а равно унижение человеческого достоинства»;
- статья 212 УК РФ — «Массовые беспорядки».
- Статья 287, обозначенная в публикации как «Создание незаконного вооруженного формирования», указана ошибочно:
- статья 287 УК РФ озаглавлена иначе — «Отказ в предоставлении информации Федеральному Собранию Российской Федерации или Счетной палате Российской Федерации»;
- в УК РФ нет статьи с заголовком «Создание незаконного вооруженного формирования»;
- в УК РФ имеется, однако, статья 208 — «Организация незаконного вооруженного формирования или участие в нём».
- См. «Уголовный кодекс Российской Федерации» от 13.06.1996 N 63-ФЗ (ред. от 13.07.2015, с изм. от 16.07.2015) (с изм. и доп., вступ. в силу с 25.07.2015).
- Статья озаглавлена словами «Защитники парка „Торфянка“ празднуют первую серьезную победу».
- Электронная копия предписания прокуратуры, размещённая Марией Веригиной, датирована августом, а не сентябрём.
-
«Напротив озера есть пустырь», — цитирует своего собеседника Анастасия Зотова. — «Если бы они там стали строить, никто бы им слова не сказал. Но там — деревья! Там — надо вырубать! А здесь — какая хорошая поляна!»
- См.: Анастасия Зотова. «Пусть строят храм на пустыре»: за что выступают активисты, спасающие парк «Торфянка» // Moscow-Live.ru, 30 июня 2015 г.
Примечания
- Правительство Москвы.Постановление от 30 апреля 2013 г. № 280-ПП (с приложениями)
- Мальцев В. Храмострой увяз в «Торфянке» // Независимая газета. — 1.7.2015.
- Митрополит Рязанский и Михайловский Марк сделал заявление относительно ситуации с храмом на «Торфянке» // Православие.Ру, 24 августа 2016 г.
- Александр Егорцев. Лосиноостровский «майдан» // Православие и мир, 26 июня 2015 г.
- «Мы воины света, мы всех вас зачистим» // Коммерсант. — 23.06.2015.
- Противостояние противников и сторонников строительства храма на Лосином острове продолжается четвёртые сутки. Интерфакс-религия, 22.06.2015.
- Виктория Владимирова. Прокуратура снова начала проверку строительства храма в Торфянке // «Сноб».
- Обращение Святейшего Патриарха Кирилла в связи с ситуацией вокруг строительства храма в честь Казанской иконы Божией Матери в Осташковском проезде г. Москвы. Официальный сайт Московского патриархата, 24.6.2015.
- Святейший Патриарх Кирилл: Нельзя идти на поводу у людей, которые ненавидят крест Господень. Официальный сайт Московского патриархата, 26.10.2016.
- Столичные жители постояли за парк // Коммерсантъ.
- Елена Николаева. Жители Лосиноостровского района Москвы круглосуточно дежурят в парке // Московский комсомолец, 28 июня 2015 г. (Опубликовано в газете «Московский комсомолец» № 26845 от 29 июня 2015 г. под заголовком «Готова ли вспыхнуть Торфянка?»)
- Москвичи продолжают неравную борьбу с чиновниками и РПЦ за парк «Торфянка» (рус.), ИА REGNUM. Дата обращения 15 августа 2018.
- Противостояние в «Торфянке» перешло в задержания // Коммерсантъ.
- Православные не поделили «Торфянку» // Коммерсантъ.
- Судебное дело о строительстве храма в парке «Торфянка» прекращено по ходатайству истцов // Православие и мир, 31 июня 2015 г.
- Определение Бабушкинского районного суда г. Москвы о прекращении производства по делу о признании недействительными публичных слушаний, связанных со строительством объектов РПЦ МП в парке Торфянка.
- Церковь готова рассмотреть возможность строительства храма на «Торфянке» в другом месте // Православие и мир, 31 июня 2015 г.
- Москвичам предложили на выбор три участка под храм, строительство которого остановили в «Торфянке». Интерфакс-религия, 2.9.2015.
- Власти Москвы предоставят новый участок под храм в парке «Торфянка». РИА Новости, 09.10.2015.
- Отчёт главы управы Лосиноостровского района города Москвы П.П. Литовченко "О результатах деятельности управы района за 2016 год". Официальный сайт совета депутатов МО Лосиноостровский. Администрация МО Лосиноостровский (26 января 2017).
- Храм-часовня Святителя Макария митрополита Московского и всея Руси - православный храм, метро Бабушкинская, Москва, Анадырский пр., вл8 —. Яндекс.Карты. Дата обращения: 2 мая 2018.
- Любовь Бондаренко, Дарья Тюкова. Не «Матильдой» единой: православные активисты продолжают акции в Москве. www.mk.ru (26 сентября 2017).
- Макеева М. О чём жители СВАО спрашивали префекта на встрече в Лосинке? Архивная копия от 30 октября 2017 на Wayback Machine // Звёздный бульвар. — 27.10.2017.
- Комитет государственного строительного надзора города Москвы. Оформленные разрешения на строительство в 2018 году. Официальный сайт Мосгосстройнадзора (11 января 2018).
- Строительство храма в Анадырском проезде начнётся в мае. losinka.mos.ru. Дата обращения: 18 апреля 2019.
- Казанцева, Светлана Звонят колокола: в Москве за десять лет построили 75 новых храмов. Известия (2 мая 2021). — «Он напомнил, что с благословения Святейшего Патриарха, учитывая сложившуюся ситуацию вокруг храма в парке «Торфянка», было принято решение возводить церковь в нескольких сотнях метров в стороне от изначально выбранного участка.».
- Торфянка: новый скандал. Московский городской комитет КПРФ, 06.04.2018.
- В РПЦ назвали абсурдной идею заменить поклонный крест в «Торфянке» на монумент лосю. Интерфакс, 21.06.2017.
- Первая служба совершена в храме, заменившем "протестный" храм в Торфянке. РИА Новости (22 июля 2020).
- Храм "с Торфянки" будет достроен в будущем году - Москва || Интерфакс Россия. www.interfax-russia.ru. Дата обращения: 15 августа 2021.
- ПРАВИТЕЛЬСТВО МОСКВЫ. ПОСТАНОВЛЕНИЕ от 30 апреля 2013 года N 280-ПП "Об утверждении проекта планировки части территории объекта природного комплекса N 65 Северо-Восточного административного округа города Москвы "Парк на Изумрудной ул." по адресу: Осташковский проезд, вл.4". Информационная сеть «Техэксперт». Вестник Мэра и Правительства Москвы, N 25, 07.05.2013. Архивировано 26 июля 2021 года.
- ХРАМ В ЧЕСТЬ КАЗАНСКОЙ ИКОНЫ БОЖИЕЙ МАТЕРИ. Фонд «Поддержки строительства храмов города Москвы».
- Православные критикуют власти за отсутствие помощи в вопросе строительства храма в «Торфянке» // Интерфакс-религия, 24 июня 2016 г.
- Иеромонах Димитрий (Першин). Храм на «Торфянке»: не вместо, но вместе // Православие и мир, 29 июня 2015 г.
- Егор Барков. Осташковская улица // Узнай Москву
- Защита парка «Торфянка». Жители дежурят и встречаются с Митрохиным.
- В конце июля состоится следующее заседание суда по поводу храма в «Торфянке» // Интерфакс-религия, 06 июля 2015 г.
- Суд перенес заседание по решению вопроса о строительстве храма в парке «Торфянка» на 31 июля // Православие и мир, 6 июля 2015 г.
- Юлия Дудкина. Церковь против парка. Битва за «Торфянку» // «Сноб», 24 июня 2015 г.
- Вячеслав Козлов, Павел Коробов. Храм в «Торфянке» может переехать // газета «Коммерсант», № 137 от 03 августа 2015 г., стр. 5
- Гражданское противостояние на «Торфянке» в Москве. Часть 1: начало.
- Андрей Козенко. «Одни новые джинсы на уме»: Москвичи добились приостановки строительства храма в парке «Торфянка» // «Медуза», 26 июня 2015 г.
- В парке «Торфянка» полиция разгоняет протестующих. "Большой город" (25 июня 2015).
- Полиция разгоняет палаточный лагерь противников строительства храма в парке «Торфянка». Телеканал "Дождь" (25 июня 2015).
- Епископ Подольский Тихон. Епископ Тихон о строительстве на Торфянке: Любое решение суда примем как волю Божию // Православие и мир, 27 июня 2015 г.
- Екатерина Винокурова. Испытание веры // Znak.com, 01 июля 2015 г.
- Православные очистили от мусора московский парк, где возник конфликт вокруг строительства храма // Интерфакс-религия, 06 июля 2015 г.
- Православные собрали 2 тыс. подписей за строительство храма в «Торфянке» // Интерфакс-религия, 06 июля 2015 г.
- Заседание суда по делу о строительстве храма в парке «Торфянка» состоится 31 июля // «REGIONS.RU / Новости Федерации», 08 июля 2015 г.
- Митинг противников строительства храма в «Торфянке» прошел без инцидентов // Интерфакс-религия, 10 июля 2015 г.
- Строительство храмов в Москве вредит природе?. WordYou.ru.
- Александр Егорцев. Митинг на «Торфянке» 9 июля: как это было // Православие и мир, 9 июля 2015 г.
- В «Торфянке» прошла акция против строительства храма // «Век», электронная газета, 10 июля 2015 г.
- Александр Егорцев. Противостояние на Торфянке: митинг прошел, на очереди — суд // Православие и мир, 10 июля 2015 г.
- Храм в «Торфянке»: противостояние продолжается // Русская планета, информационно-аналитический проект.
- В Москве на Большом Каменном мосту размещен баннер в защиту парка «Торфянка» // СОВА, информационно-аналитический центр, 17 июля 2015 г.
- В Москве задержаны противники строительства храма в «Торфянке» // радиостанция «Свобода», 26 июля 2015 г.
- В Москве освобождены все задержанные активисты Торфянки // радиостанция «Свобода», 26 июля 2015 г.
- Александр Егорцев. Противники строительства храма на Торфянке в суде «потеряли интерес» // Православие и мир, 01 августа 2015 г.
- Противники храма в «Торфянке» отозвали иск (дополненная версия) // Интерфакс-религия, 31 июля 2015 г.
- Противники строительства храма в московском парке «Торфянка» отозвали судебный иск // ТАСС, 31 июля 2015 г.
- Бабушкинский суд Москвы прекратил производство по делу о строительстве храма в парке «Торфянка» в Лосиноостровском районе // «Эхо Москвы», 31 июля 2015 г.
- Жители Лосиноостровского района смогут высказаться о строительстве храма в «Торфянке» Архивировано 23 декабря 2015 года. // Интерфакс-Недвижимость, 3 августа 2015 г.
- Муниципальный округ Лосиноостровский в городе Москве
- Юлия Рузманова. ОМОН разогнал защитников парка «Торфянка» // The Village, 14 августа 2015 г.
- Григорий Туманов. ОМОН разогнал защитников парка «Торфянка» // Коммерсант, 14 августа 2015 г.
- ОМОН снёс лагерь противников строительства храма в парке «Торфянка» // Русская служба новостей, 14 августа 2015 г.
- Противники строительства храма в парке «Торфянка» сообщили о нападении на депутата // Интерфакс, 15 августа 2015 г.
- Православные заявили о непричастности к нападению на московского депутата // Интерфакс, 17 августа 2015 г.
- Праздник Преображения в парке «Торфянка» может помирить враждующих // РИА Новости, 19 августа 2015 г.
- Несколько сотен человек отметили в «Торфянке» Яблочный Спас // Интерфакс-религия, 20 августа 2015 г.
- Предложения по поводу строительства храма рассмотрены. Муниципальный округ Лосиноостровский в городе Москве (26 августа 2015).
- Конфликт вокруг строительства храма в парке «Торфянка» исчерпан. Русская линия, 12.10.2015.
- Священник подал заявление в СК по факту нападения на него в парке Торфянка // РИА Новости, 24 мая 2016 г.
- В парке «Торфянка» хулиганы пытались сломать крест на месте строительства храма // НТВ, 29.8.2017.
- «К защитникам парка „Торфянка“ пришли с обысками и задержали», Би-Би-Си, 14 ноября 2016 г.
- «К защитникам парка „Торфянка“ пришли с обысками и задержали», Би-Би-Си, 14.11.2016
- Полиция задержала около 10 человек в парке «Торфянка» // ТАСС, 4 декабря 2016 г.
- Заявление Епархиального совета Московской городской епархии в связи с ситуацией вокруг строительства храма в честь Казанской иконы Божией Матери в Осташковском проезде г. Москвы // Русская Православная Церковь, официальный сайт Московского Патриархата, 31 августа 2015 г.
- Татьяна Щербакова. Противостояние // «Крестовский мост», № 7, 2015 г.
- Не сразу храмы строились. portal-kultura.ru (16 июня 2017).
- Юрий Шубин. Два года на Торфянке стоит поклонный крест // ИА REX, 19 июня 2017 г.
- Виктор Нехезин. Горожане против православных активистов: нужны ли России новые храмы? // Би-би-си, 10 июля 2015 г.
- Павел Коробов, Григорий Туманов. «На моей памяти подобного проекта не было» // Коммерсант, 18 августа 2014 г.
- Полыгаева Д. Не место для храма: Как жители северо-востока Москвы протестуют против строительства церкви в парке // The Village, 24 июня 2015 г.
- Конфликт вокруг возведения храма в «Торфянке» раздут на ровном месте, заявляют в РПЦ Архивировано 23 декабря 2015 года. // Интерфакс-Недвижимость, 3 августа 2015 г.
- Егор Холмогоров Долгая дорога к храму // portal-kultura.ru, 14.07.2015
- Редакция портала «Православие и мир». Как организуют борьбу против строительства храмов в Москве (Письмо бывшей активистки) Православие и мир, интернет-портал, 16.2.2014.
- Храм, да не нам. «Йод».
- Расследование РБК: кто финансирует строительство новых храмов в Москве. РБК. Дата обращения: 2 мая 2018.
- «Они плюют на нас каждый день». Lenta.ru.
- Посмотреть на Яндекс-картах
- "О храме" (недоступная ссылка). Официальный сайт местной религиозной организации Православный приход храма преподобного Серафима Саровского в Раеве гор. Москвы Московской епархии Русской Православной Церкви (Московский Патриархат). Дата обращения: 27 августа 2015. Архивировано 6 августа 2010 года.
- Самое масштабное строительство в истории Программы-200. Фонд «Поддержки строительства храмов города Москвы» (12 мая 2012).
- Гражданское противостояние в парке «Торфянка» в Москве. 31 июля. СУД (31-07-2015).
- Протест на «Торфянке». 25 августа. (26-08-2015).
- Часть противников храма в «Торфянке» не заинтересована в мирном решении конфликта — префект // Интерфакс-религия, 20 августа 2015 г.
- Гостев, Александр. "Правильное" православие – это фашизм" (рус.), Радио Свобода. Дата обращения 20 ноября 2015.
- Александр Егорцев. КОММУНЯБЛОКО против РПЦ: Симбиоз КПРФ и «Яблока» в борьбе против храма на Торфянке Архивная копия от 29 мая 2016 на Wayback Machine // «Национальный контроль», 3 августа 2015 г.
- Лосиноостровский “майдан” (рус.). Дата обращения 17 июня 2018.
- Москвичи продолжают протестовать против строительства храма в парке «Торфянка». Информационно-аналитический центр "Сова" (22 июня 2015).
- В парке «Торфянка» напали на активистку, выступавшую против строительства храма. "Росбалт" (30 июня 2015).
- Елена Мухаметшина. Из-за конфликта в парке «Торфянка» возбудили дело об оскорблении верующих // Ведомости, 15.11.2016.
- Светлана Максимова. Противостояние на Торфянке: «Нас сталкивают лбами!» // Российский Объединённый Трудовой Фронт, 14 августа 2015 г.
- Павел Анохин. Депутат Рашкин призвал ликвидировать движение «Сорок сороков». "Парламентская газета" (21 августа 2015).
- «Сорок сороков» прокомментировали инициативу депутата Валерия Рашкина // Парламентская газета, 25 августа 2015 г.
- Ася Сотникова, Мария Истомина. Учитель пожаловался Чайке на ложные доносы на фильм «Матильда» // РБК, 4 августа 2017 г.
- Суд прекратил дело о строительстве храма в парке «Торфянка» // «Медуза», 31 июля 2015 г.
- Защитники парка «Торфянка» празднуют первую серьезную победу // «Новый День—Новый Регион», 31 июля 2015 г.
- Община храма в Торфянке хочет продолжить строительство без конфликтов // ТАСС, 31 июля 2015 г.
- Администрация МО Лосиноостровский. О признании обращения депутата Совета депутатов муниципального округа Лосиноостровский Н.Н. Федоровой депутатским запросом. Официальный сайт совета депутатов МО Лосиноостровский (28 июня 2018).
- ДОКУМЕНТ: Три года противостоянию в парке Торфянка. www.portal-credo.ru. Дата обращения: 1 июля 2018.
- Патриарх Кирилл просит сторонников и противников строительства храма на северо-востоке Москвы решить вопрос миром // Интерфакс-религия, 24 июня 2015 г.
- Владислав Мальцев. Все «русское» стало предметом пристального внимания // Независимая газета, 01 июля 2015 г.
- Андрей Самохин. Битва при «Торфянке» // «Культура, 17 августа 2016 г.»
- Газета «Культура»
- Московская епархия согласилась перенести храм из парка «Торфянка»
- Дарья Менделеева. "Торфянка "— из зала и около суда // Православие и мир, 07 июля 2015 г.
- Андрей Малосолов. Столичный парк Торфянка: майдан в вашем дворе // Ридус, 25 июля 2015 г.
- Юрий Шубин. Противники храма на Торфянке готовят антицерковный майдан // «Русская народная линия», информационно-аналитическая служба, 13 июля 2015 г.
- Строительство Храма-часовни по адресу: Осташковский проезд, вл. 4 (недоступная ссылка). Дата обращения: 13 декабря 2019. Архивировано 18 марта 2016 года.
- Татьяна Щербакова. Храмоборцы // «Религия и СМИ», интернет-журнал, 15 мая 2015 г. (Перепечатано из газеты «Крестовский мост».)
- В Торфянке не дают построить храм, но используют часть парка под дорогу // РИА Новости, 24.6.2016.
- Пресс-служба Патриарха Московского и всея Руси. [ Святейший Патриарх Кирилл призвал настоятелей строящихся в Москве храмов взять под личный контроль ход строительства] // Русская Православная Церковь, официальный сайт Московского Патриархата, 21 декабря 2015 года.
- Петелин Г. Храм раздора. Газета.Ру (23 июня 2015).
Ссылки
Противники храма
- Общественное движение «За парк Торфянка!» // «ВКонтакте»
- Парк «Торфянка», Лосиноостровский район, СВАО // Facebook
- М. Веригина. ТОРФЯНКА, ПРОТИВОСТОЯНИЕ, ИЛИ СЕКРЕТНЫЕ ПРОТОКОЛЫ РЕСИНА. Forum.msk.ru (23 июня 2015).
Сторонники храма
Официальные сайты
Поиск в новостях
Обзорные публикации
- ОПЕРАЦИЯ «ТОРФЯНКА» // Фонд «Возвращение», 21.12.2017
- Иванов О. Б., Ильинская Ю. И. Проблема типологии градостроительных конфликтов в России