Особняк Саарбекова
Особняк М. С. Саарбекова (ныне известен также как «Дом Балтрушайтиса») — жилой дом на Поварской улице в Москве, построенный в 1899—1900 годах по проекту архитектора Льва Кекушева, при участии его помощника Сергея Шуцмана. Известен как второе по времени произведение модерна в Москве и одно из ранних сооружений в этом стиле в России. Имеет статус объекта культурного наследия регионального значения.
| Достопримечательность | |
| Особняк М. С. Саарбекова | |
|---|---|
![]() Общий вид уличного фасада | |
| 55°45′17″ с. ш. 37°35′39″ в. д. | |
| Страна |
|
| Город | Москва, Поварская улица, 24, стр. 1 |
| Тип здания | особняк |
| Архитектурный стиль | модерн |
| Автор проекта | Л. Н. Кекушев, при участии С. С. Шуцмана |
| Строительство | 1899—1900 годы |
| Статус |
|
До октябрьской революции дом принадлежал Моисею Семёновичу Саарбекову — богатому московскому купцу армянского происхождения, по имени которого здание и вошло в историю архитектуры; здесь же располагались конторы принадлежавших Саарбекову предприятий. В 1920—1940 годах особняк занимала Литовская дипломатическая миссия во главе с известным поэтом Серебряного века Юргисом Балтрушайтисом. Позднее в здании разместилось представительство Литовской ССР, а с начала 1990-х годов здесь находится Культурный центр Литовской республики «Дом Балтрушайтиса».
Фасад здания, «зажатый» с двух сторон высокими соседними домами, отличает редкая для времени его постройки лаконичность декоративного оформления, главной темой которого являются выразительно прорисованные арочные обрамления окон, парадного входа и въезда во двор.
История

Владение, которое занимает современное здание, сложилось во второй половине XVIII века. В начале XIX века по линии Поварской улицы стоял небольшой деревянный дом со служебными постройками во дворе, принадлежавший капитанской дочери Варваре Михайловне Лаухиной. Во время пожара 1812 года все постройки усадьбы сгорели. Восстанавливать владение начали после 1815 года — выстроили два новых жилых одноэтажных дома в ампирных формах, флигель вдоль северной границы участка и хозяйственные строения по боковым сторонам. В 1822 году в доме Лаухиной останавливался отец М. Ю. Лермонтова «отставной корпусной капитан» Ю. П. Лермонтов, приехавший в Москву к родственникам[1][2]. Весной 1828 года один из домов Лаухиной сняла бабушка Лермонтова — Е. А. Арсеньева, которая поселилась здесь вместе со своим 13-летним внуком и его товарищем по Тарханам Давыдовым. В этом доме Лермонтов написал первую поэму «Индианка» и начал издавать рукописный журнал «Утренняя Заря». После того как к проживающим присоединился П. П. Шан-Гирей с сыном Акимом, дом стал тесен, и осенью того же года Арсеньева переехала в соседнее владение, принадлежавшее вдове майора В. Я. Костомаровой (на месте современного № 26)[3][4].
В 1841 году, когда участок перешёл во владение отставного майора графа А. И. Маркова, одноэтажные дома надстроили мезонинами. В 1860-х годах хозяйкой участка стала капитанша Е. П. Хвощинская, которая возвела вдоль улицы ещё одно каменное здание и переделала фасады построек в духе эклектики. Во второй четверти XIX века усадьба ещё несколько раз меняла владельцев, пока в 1899 году у мещанина П. И. Шведкова её не купил Моисей Семёнович Саарбеков (1855—после 1917) — потомственный почётный гражданин, богатый купец армянского происхождения[5]. Саарбеков приходился зятем московской семьи Лианозовых, в долях с представителями которой владел Южно-Каспийским рыболовным промыслом[6], входил в состав правления Товарищества «Лианозова Г. М. Сыновей», занимавшегося нефтяным промыслом[7], владел химическим заводом за Рогожской заставой на Владимирском тракте[8][9].

Фотография 1907 г.
По прошению Саарбекова в Московскую городскую управу от 19 мая 1899 года прежние постройки снесли, и хозяин участка заказал проект нового особняка гражданскому инженеру Льву Кекушеву. На утверждение в управу были поданы чертежи плана и эскиз фасада, которые выполнил и подписал ближайший помощник Кекушева — Сергей Шуцман. Однако постройка была осуществлена по другому проекту, авторство которого принадлежит Кекушеву, при участии Шуцмана. Возможно, в проектировании и строительстве особняка принимал участие и другой помощник зодчего — Иван Фомин, один из крупнейших русских архитекторов XX века, в 1899—1901 годах работавший в бюро Кекушева[10].

Вероятно, по желанию заказчика дом изначально должен был выполнять не только жилую, но и конторскую функцию, что и было учтено архитектором при проектировании внутренней структуры и внешнего облика здания. Моисей Саарбеков не только поселился в особняке, но и разместил здесь свои конторы — химического завода и промыслового предприятия[11][12]. Саарбеков принадлежал к просвещённому купечеству — занимался благотворительностью[сн 1], знал несколько языков[сн 2] и, вероятно, следил за европейской модой, где набирал популярность новый стиль, позднее получивший в России название модерн. Вместе с тем Моисея Семёновича отличала чрезмерная экономность, которая нередко приводила к курьёзам. По легенде, когда у купца обнаружили жёлчнокаменную болезнь, он наотрез отказался лечь в больницу и велел сделать операцию прямо на дому, а чтобы пыль от проезжавших экипажей не вызвала осложнений, сначала приказал заасфальтировать Поварскую, а затем и вовсе перекрыть по ней движение. Хирург запросил за услуги три тысячи рублей, но Саарбеков предложил платить за каждый извлечённый камень — по тысяче рублей. В результате успешно проведённой операции у купца извлекли сорок мелких камней, а так как их размер изначально не оговаривался, Моисею Семёновичу пришлось выложить врачу баснословную по тем временам сумму — сорок тысяч рублей[15]. Последнее упоминание Саарбекова как хозяина особняка на Поварской улице содержится в адресной и справочной книге «Вся Москва» на 1917 год — на тот момент Моисей Семёнович служил в Лазаревском институте восточных языков[16].
После октябрьской революции богатые особняки на Поварской улице национализировали и многие из них отдали под размещение дипломатических миссий. В 1920—1940 годах бывший особняк Саарбекова занимало дипломатическое представительство Литвы — специальная миссия, затем посольство в Советской России и СССР. Чрезвычайным и полномочным послом Литовской республики в 1922—1939 годах являлся поэт-символист Юргис Балтрушайтис, который работал и некоторое время жил в этом доме[17][18]. Позднее, вплоть до начала 1990-х годов, здание занимало представительство Литовской ССР, при котором действовало общежитие для приезжающих. Во время Великой Отечественной войны в доме жил литовский писатель А. Венцлова, оставивший об этом свои воспоминания[19][20].
В 1992—1995 годах несколько комнат особняка занимала литовская средняя школа — в начале негосударственная, а с 1994 года получившая название «Шальтинелис» («Родничок») и преобразованная в государственную школу № 1247[21]. В настоящее время в здании размещается Центр культурных проектов Литовской республики «Дом Балтрушайтиса»[22][23]. Здесь проходят литературные вечера, конференции, выставки художников и фотомастеров, выступают музыкальные коллективы. С 1990-х годов каждую последнюю декаду мая в особняке проводят международную научную конференцию, посвящённую Юргису Балтрушайтису и Серебряному веку[24][25]. В особняке размещается резиденция атташе по культуре посольства Литовской республики; эту должность в 1996—2011 годах занимал Юозас Будрайтис.
В 1993 году на фасаде здания установили мемориальную доску в память о Ю. Балтрушайтисе[17]. В 2009 году особняк М. С. Саарбекова принят под государственную охрану в качестве объекта культурного наследия регионального значения[26].
Архитектура и оформление
Композиция и декор фасада
Ордерные элементы оконных переплётов в постройках Л. Н. Кекушева
Законченный строительством в 1900 году особняк М. С. Саарбекова стал второй по времени появления московской постройкой в стиле модерн и одним из первых сооружений в этом стиле в России[сн 3]. Первым произведением модерна в Москве принято считать построенный Кекушевым за год до этого особняк Листа, при проектировании которого зодчий выработал ряд авторских приёмов, неоднократно использованных им позднее в других своих произведениях, в том числе в особняке Саарбекова. Новый особняк на Поварской сразу же был высоко оценен профессионалами за редкую для того времени рафинированность форм[12]. Приложение к журналу «Зодчий» «Неделя строителя» сообщало:
Двухэтажный дом-особняк на Поварской, построенный гражданским инженером Л. Кекушевым, вновь свидетельствует о выдающемся таланте этого зодчего. Дом выдержан в простом «Style nouveu» крайнего направления, не без дорогостоящих вычур[27].

Выполненное из кирпича двухэтажное здание с полуподвалом поставлено по красной линии Поварской улицы; задняя, не видимая с улицы половина дома частично увеличена по высоте до трёх этажей. В отличие от других особняков Кекушева — Листа, Понизовского, Миндовского, Носова, трактованных автором как трёхмерная структура, эта постройка зодчего строго фасадна, что объясняется изначальной формой и размером выделенного под строительство участка. Вынужденную плоскостность архитектурной композиции Кекушев преодолел изобретательной пластикой фасада и значительным выносом кровли, трактованной как козырёк[28].

Тщательная прорисовка криволинейных дверных полотнищ и обрамлений, оконных проёмов и наличников является одним из характерных приёмов Кекушева. По мнению исследователя архитектуры модерна Марии Нащокиной, этот приём достиг совершенства в трёх постройках зодчего — особняке Саарбекова, собственном особняке и доходном доме на Остоженке, при этом в особняке Саарбекова арочные обрамления окон, входа и проезда во двор стали главной пластической темой фасада. Особенно выразительно подчёркнут расположенный в левой части здания парадный вход, выделенный ризалитом, увенчанным высоким аттиком с тремя рядами мелких убывающих по высоте фигурных ниш и проёмов[29][30]. Подобная асимметрия фасада сообщает архитектурной композиции некоторый динамизм, который усиливался за счёт первоначального заполнения входного портала, состоявшего из двух окон и дверного проёма, разделённых широкими каменными перемычками[31][30]. В оформлении обрамления окна над парадным входом и фланкирующих его колонок угадываются восточные мотивы, что, возможно, объясняется происхождением заказчика[32]. Как и в особняке Листа, деревянные переплёты некоторых окон снабжены снаружи сильно выступающими стилизованными ордерными элементами — миниатюрными приставными колонками[33].
В расположенный позади особняка небольшой двор ведёт проезд в правой части здания, оформленный как арочная галерея, накрытая четырьмя вспарушенными сводами; первоначально в центре каждой купольной ячейки висели фонари, подчёркивающие в тёмное время суток перспективу уходящих в глубь сводов[34]. Проезд во двор закрывают створки кованых ворот, в орнаменте которых Кекушев использовал мотив завитка спирали, нарисованный в более спокойной манере, чем в лестничных ограждениях особняка[35]
В отличие от уличного фасада здания, его дворовые стены полностью лишены отделки — необработанными остались даже обрамления окон. Судя по характеру кирпичной кладки, штукатурка предполагалась и здесь, что не было осуществлено, вероятно, по экономическим соображениям заказчика[30].
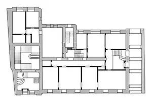
Планировка и интерьеры

Парадный вход ведёт на второй и третий этажи особняка, первоначально бывшие жилыми. Сразу за входом находится небольшой вестибюль, перекрытый высоким крестовым сводом; помещение освещается арочным окном, его стены обработаны горизонтальным рустом с выступающими поверхностями отдельных «блоков», а пол покрыт в шахматном порядке светлыми и тёмно-серыми керамическими плитками. На первый уровень ведёт короткая каменная лестница с двумя бо́льшими по длине скруглёнными забежными ступенями и кованным ограждением с орнаментом, стилизующим завиток спирали; верхняя площадка лестницы обращена ко входу небольшим балконом. Арочным проёмом эта площадка соединена с квадратным в плане монументальным пространством парадной лестницы[сн 4], декорированным так же, как и вестибюль, и освещённом большим плоским квадратным фонарём верхнего света. Приём освещения верхним светом был распространён в сооружениях начала XX века, в том числе активно использовался Кеушевым в крупных жилых и общественных зданиях, однако в особняках он встречается довольно редко — по мнению М. В. Нащокиной, наиболее яркими примерами могут служить окна верхнего света в шехтелевском особняке С. П. Рябушинского и в особняке М. С. Саарбекова[37][38].
На втором этаже располагались главные парадные помещения дома, в оформлении которых Кекушев использовал те же декоративные приёмы, что и в особняке Листа — большой зал, кабинет хозяина (на фасаде он отмечен крупным окном над входом) и комната окнами во двор, первоначально бывшая, вероятно, столовой. Пространственные характеристики этих помещений остались в основном без изменений, однако декоративное убранство комнат большей частью утрачено. В кабинете сохранился угловой камин, выполненный из чёрного мрамора, с зеркалом в лепной раме над ним; из украшений зала, первоначально разделённого на два помещения (одно из них, вероятно, было гостиной), до наших дней дошли тянутые карнизы и лепные потолочные розетки; в столовой (?) сохранились тёмные деревянные потолочные балки, между которыми, возможно, располагались живописные вставки, ныне утраченные или закрашенные. В невысоком третьем этаже, видимом лишь со двора, находились личные покои Саарбекова. На обоих жилых этажах здания сохранились деревянные межкомнатные двери, дубовые оконные рамы с оригинальной металлической фурнитурой и несколько светильников, включая украшающую парадную лестницу скульптуру-светильник работы Феликса Шарпантье[37][39].

В проездной арке устроен ещё один вход в здание, через который посетители попадали в расположенные на первом этаже (бельэтаже) конторские помещения предприятий Саарбекова. Рядом со входом располагается помещение, первоначально предназначавшееся для привратника[40]. В полуподвальном этаже находились подсобные помещения, дворницкая и прачечная[9]. Все этажи связывает чёрная двухмаршевая лестница, расположенная в задней части особняка[23].
Переделки и утраты
В 1905 году гражданский инженер В. А. Властов осуществил в особняке ряд внутренних работ; он же переделал конструкцию балкона в вестибюле, заменив деревянные балки на железные, несколько изменил задний фасад и возвёл во дворе каменные одноэтажные служебные постройки — конюшни и каретный сарай[41][42]. В 1914 году дворовые постройки частично надстроили вторым этажом по проекту архитектора С. А. Власьева[43]. Возможно, во время производства этих работ Властов и Власьев были сотрудниками архитектурного бюро Кекушева[42]. В советское время конюшни и каретный сарай приспособили под автомобильные гаражи[35].
Градостроительное восприятие особняка существенно изменилось после возведения в 1910-х годах по линии улицы двух соседних высоких доходных домов — № 22 графини А. А. Милорадович (1912, архитектор Р. И. Клейн) и № 26 И. С. Баскакова (1914, архитектор О. Г. Пиотрович).
Отделка уличного фасада постройки дошла до наших дней без существенных изменений. Негативно на архитектурной композиции здания отразилась произведённая в 1930-х (?) годах замена эффектной асимметричной композиции входа на ныне существующую примитивную деревянную раму с симметричными дверными полотнищами[28][30].
Комментарии
- Саарбеков являлся бессменым попечителем Касперовского приюта для бедных армян, размещавшегося в Армянском переулке в Москве[13].
- Известен сделанный М. С. Саарбековым перевод драмы Виктора Гюго «Мария Тюдор»[14].
- Первым в России зданием в стиле модерн принято считать дачу великого князя Бориса Владимировича, построенную архитекторами Шернборном и Скоттом в 1897 году в Царском Селе. См.: Кириков Б. М. Архитектура петербургского модерна. Особняки и доходные дома. — 3-е изд.. — СПб.: Коло, 2008. — С. 51. — 576 с. — ISBN 5-901841-41-1.
- Ныне между площадкой и объёмом парадной лестницы установлена высокая деревянная рама с остеклённым дверными полотнищами[36]
Примечания
- Романюк, С. К. Москва шаг за шагом: улица Воровского // Архитектура и строительство Москвы. — 1987. — № 12. — С. 18.
- Архитектурное наследие Москвы, 2012, с. 99.
- Мануйлов, В. А. Летопись жизни и творчества М. Ю. Лермонтова. — М.: Наука, 1964. — 200 с.
- Быковцева, Л. П. Русские писатели в Москве. — М.: Московский рабочий, 1977. — С. 396. — 856 с.
- Архитектурное наследие Москвы, 2012, с. 99—100.
- Вся Москва: Адресная и справочная книга на 1914 год. — М.: Издание А. С. Суворина «Новое Время», 1914. — С. 578.
- Фабрично-заводские предприятия Российской Империи / Л. К. Езиоранский (Сост.). — СПб.: Издание Торгового дома А. Срока и К°, 1909. — С. 598.
- Нащокина, 2011, с. 120.
- Архитектурное наследие Москвы, 2012, с. 100.
- Нащокина, 2012, с. 386.
- Москва-Сибирь: Адресная и справочная книга: посредник-указатель торгово-промышленных фирм г. Москвы и Сибири. — М.: Издание А. П.Крюкова, 1908. — С. 502.
- Нащокина, 2012, с. 209.
- Вся Москва: Адресная и справочная книга на 1907 год. — М.: Издание А. С. Суворина «Новое Время», 1907. — С. 183.
- Гюго, В. Мария Тюдор: Драма / Перевод и предисл. М. С. Саарбекова. — М.: Типография М. Борисенко и А. Бреслин, 1899. — 178 с.
- Сергиевская, И. Москва парадная. Тайны и предания Запретного города. — М.: Алгоритм, 2014. — С. 564. — 736 с. — ISBN 978-5-4438-0588-7.
- Вся Москва: Адресная и справочная книга на 1917 год. — М.: Издание А. С. Суворина «Новое Время», 1917. — С. 429.
- Московская энциклопедия / С. О. Шмидт — Гл. ред.. — М.: Издательский центр «Москвоведение», 2007. — Т. I, Лица Москвы. — С. 122—123. — 639 с. — 10 000 экз. — ISBN 978-5-903633-01-2.
- Дауётите, В. Юргис Балтрушайтис: Монографический очерк. — Вильнюс: Vaga, 1983. — С. 67—68.
- Венцлова, А. В поисках молодости: Воспоминания. — М.: Советский писатель, 1969. — С. 266. — 376 с.
- Федосюк, Ю. А. Москва в кольце Садовых. — 2-е, перераб. изд. — М.: Московский рабочий, 1991. — С. 131. — 496 с. — 50 000 экз. — ISBN 5-239-01139-7.
- Литовский остров в столичном мегаполисе // Учительская газета. — 18 декабря 2007 года. — № 51.
- Кронгауз, М. Повара, князья, дипломаты // Квартирный ряд. — 27 марта 2008 г.. — № 13 (688).
- Архитектурное наследие Москвы, 2012, с. 101.
- Дмитриев, П. Исчезнувший феномен. Русский журнал (17.07.07). Дата обращения: 7 марта 2015.
- Международная научная конференция «От неба мой посох, от неба – свирель: К мифопоэтике символизма». Институт славяноведения РАН (2012). Дата обращения: 7 марта 2015.
- О принятии под государственную охрану выявленных объектов культурного наследия. Распоряжение Правительства Москвы № 1556-РП от 15 июля 2009 года
- По России // Неделя строителя. — 1900. — № 36. — С. 243.
- Нащокина, 2011, с. 393.
- Нащокина, 2011, с. 215.
- Нащокина, 2012, с. 211.
- Москва: Архитектурный путеводитель / И. Л. Бусева-Давыдова, М. В. Нащокина, М. И. Астафьева-Длугач. — М.: Стройиздат, 1997. — С. 324. — 512 с. — ISBN 5-274-01624-3.
- Нащокина, 2012, с. 209—210.
- Нащокина, 2012, с. 199.
- Нащокина, 2013, с. 152.
- Нащокина, 2013, с. 158.
- Нащокина, 2013, с. 159.
- Нащокина, 2013, с. 158—159.
- Нащокина, 2012, с. 212—213.
- Нащокина, 2012, с. 212.
- Нащокина, 2013, с. 152—158.
- Нащокина, 2012, с. 214—215.
- Нащокина, 2013, с. 151.
- Нащокина, 2012, с. 388.
Литература
- Нащокина, М. В. Московский архитектор Лев Кекушев. — СПб : Коло, 2012. — С. 268—273. — 504 с., 25 с. ил. — 1250 экз. — ISBN 978-5-901841-97-6.
- Нащокина, М. В. Лев Кекушев. — М : Издательский дом Руденцовых, 2013. — С. 621—632. — 660 с. — (Архитектурное наследие России). — 2200 экз. — ISBN 978-5-902877-14-0.
- Лев Кекушев. Архитектурное наследие Москвы / М. В. Нащокина. — М.: Вега, 2012. — С. 289—293. — 415 с. — 1000 экз.
- Нащокина, М. В. Московский модерн. — 3-е, пересм., испр. и доп. — СПб : Коло, 2011. — 792, [32] с. — 1250 экз. — ISBN 978-5-901841-65-5.
Ссылки
- Воронцова, Т. Особняк Саарбекова. Узнай Москву. Дата обращения: 8 марта 2015.
