Мухранская крепость
Мухранская крепость (груз. მუხრანის ციხე) — крепость в Грузии.
| Крепость | |
| Мухранская крепость | |
|---|---|
| |
| 41°56′02″ с. ш. 44°34′23″ в. д. | |
| Страна | |
| Местоположение | Мухрани |

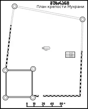
Расположена в Мухрани, на левом берегу реки Ксани. Построена Константином Мухран-Батони. Одна из самых больших средневековых грузинских крепостей. Её площадь равняется 2,5 гектарам. Крепость построена в 1733 году и состоит из двух частей: цитадели, сохранившейся на сегодня, и стены, от которой сегодня ничего не осталось. В XIX веке местное население разбирало крепость и использовало камни для строительства домов.
Сохранились две надписи о цитадели — первая размещена над аркой ворот, а вторая над входом в главную башню цитадели [1]. Первая надпись исполнена на песчанике и плохо сохранилась, однако грузинским учёным удалось её расшифровать[1]:
Уповая на бога, мы, Мухран-Батони и Сахлхуцеси Константин, построили ограду эту и башни в Шиосубани на наши средства и деньги и вложили много труда в то время, когда неверные проявляли свою силу над страной Картли. Местами были опустошены сёла и поселения, и это Шиосубани было опустошено, и его коренные жители рассеялись. Я собрал их и оградил каменной стеной, потому что село было вотчиной моих предков и я был наследником их. Кто это прочтёт, пусть помянет мои труды. С рождества Христова 1756, Хороникона 444
Вторая же надпись гласит:
Мы Мухран-Батони и Сахлхуцеси Константин, построили эту Шиосубанскую ограду с башнями и эту башню назвали "Мама-Бурджи", потому, что она больше других башен и вместительнее. С рождества Христова 1756, Хороникона 444
В обоих надписях говорится, что крепость построена в селе Шиосубани, которое уже не существует. Известно, что крепость была построена с помощью Турецкого наместника Исаак-Пашы, который собрал рабочих не только во владениях Мухран-Батони, но и в сопредельных областях. По сообщению грузинского летописца, крепость строили 600 грузинских рабочих. План цитадели представляет из себя почти квадрат — в углах стены расположены цилиндрические башни, а внутри однонефная церковь. Вход в цитадель расположен в центре восточной стены, другие же стены глухие и имеют одинаковую высоту. Большая часть башен небольшого размера и принадлежит одному типу. Самая большая башня северо-восточная.[1]
Крепостные стены двухъярусные. Нижняя часть шире верхней, что создаёт боевую тропу, которая продолжается по всему периметру (высота нижнего яруса равна 4 — 4,5 метров, а верхний выше на 50-70 см). Бойницы имеет только верхняя часть стен, которая завершалась полукруглыми зубцами. Левая часть стены имеет три ниши — одну большую, и две маленькие, из которых сохранилась только выложенная кирпичом и перекрытая стрельчатой аркой западная ниша[1].
Церковь Мухранской крепости расположена в северо-восточной части крепости. У церкви 8 окон и два входа. Одно окно расположено в центре абсиды, другие на боковом фасаде. В боковых стенах 5 окон — три на севере и два на юге. Один вход расположен на западе, другой на юге. По среднему горизонту стен на фасаде вырезаны крест и ромбы. В восточном фасаде вокруг центрального окна расположено три креста — один большой и два меньших.
Мухранская крепость.
Крепость внутри
Примечания
- Пармен Закараиа. Древние крепости Грузии. — ЦК КП Грузии. — Мерани, 1969. — С. 46-54.