Дом искусства (Мюнхен)
Дом искусства (нем. Haus der Kunst, первоначально «Дом германского искусства» (нем. Haus der Deutschen Kunst)) — выставочное здание в Мюнхене по улице Принцрегентенштрассе (Prinzregentenstraße), примыкающее к Английскому парку и построенное в 1937 году по проекту Пауля Людвига Трооста при личном участии Адольфа Гитлера.
| Достопримечательность | |
| Дом искусства | |
|---|---|
| нем. Haus der Kunst | |
| |
| 48°08′38″ с. ш. 11°35′09″ в. д. | |
| Страна | |
| Местоположение | Мюнхен |
| Архитектурный стиль | архитектура эпохи национал-социализма в Германии |
| Архитектор | Пауль Людвиг Троост |
| Основатель | Адольф Гитлер |
| Дата основания | 1937 |
| Сайт |
hausderkunst.de/en (англ.) hausderkunst.de (нем.) |

История
Здание Дома искусства в стиле монументального неоклассицизма построено взамен сгоревшего в 1931 году знаменитого Стеклянного дворца в Старом ботаническом саду. Первый камень в основание здания был положен в 1933 году. По случаю открытия выставочного здания в здании галереи в парке Хофгартен (ныне здание Немецкого музея театра) демонстрировалась передвижная антимодернистская выставка «Дегенеративное искусство».
До 1939 года в Доме искусства ежегодно проводился «День германского искусства», где с приветственными речами выступал Адольф Гитлер. В 1938—1944 годах в Доме германского искусства проходили ежегодные «Большие германские художественные выставки». Первым директором был назначен Карл Кольб.

Несмотря на претензии Дома искусства на статус храма «германского (то есть национал-социалистического) искусства», его концепция была с самого начала построена на коммерческой основе: в здании были предусмотрены предприятия общественного питания: до сих пор функционирующий «Золотой бар», пивная, в которой сейчас находится знаменитая гламурная дискотека «Р1», а также центральный ресторан. На всех выставках осуществлялась продажа экспонатов, главным покупателем выступал фюрер, завоёвывавший себе тем самым славу мецената.
Благодаря инфраструктуре общественного питания во время послевоенной американской оккупации здание использовалось как офицерский клуб. По некоторым сведениям, американцы играли в здании в баскетбол, и даже к моменту открытия здания в качестве музея ещё была заметна соответствующая разметка на полу. С 1949 года в Доме искусства проводятся ежегодные мюнхенские Большие художественные выставки. В 2007 году на выставке в Доме искусства демонстрировалось более 200 работ 173 художников.
До открытия Пинакотеки современности в западном крыле Дома искусства размещалась Государственная галерея современного искусства, а восточное крыло использовалось для проведения специализированных выставок. Зданию Дома искусства, перестроенному в 60-е годы XX века, вернули прежний внутренний вид в 2003—2004 годах.
Архитектура



Массивный фасад по диагонали, с рядом колонн, лестничным пролётом и ветвями лип перед зданием. Главный вход Взгляд вверх под углом с колоннами и кассетами в потолке портика Загляните под портик, ленты в потолке со свастикой — орнаментом . Монументальный зал, построенный на строительной сетке. Средний зал, 2006 В контексте оформления Мюнхена как " столицы движения " Троост создал первые проекты монументальных зданий для национал-социалистического режима для Дома немецкого искусства и двух зданий НСДАП на Кенигсплац .
Здания и фасады
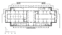
Двухосевое -симметричное здание музея в стиле редуцированного неоклассицизма имеет длину 175 м и ширину 50 м посередине, сужается к западу и востоку за счет ниш застройки. [3] Конструкция основана на непрерывной решетке, построенной из стальных балок. Балки облицованы каменными плитами, так что здание выглядит как каменное сооружение. Главный вход находится в середине южного фасада, дальнейшие входы ведут от середины северной стороны к северной галерее и по узким сторонам к боковым крыльям. По обеим сторонам — 21-осевой портик из колоссального, без канавок., на всю высоту здания, каждая из которых закрыта угловыми столбами. Портику на южной стороне на Принцрегентенштрассе изначально предшествовала открытая лестница во всю ширину, она была уменьшена в глубину в ходе перестройки улицы в 1971 году и снесена до средней части. В задней части подвал доступен с уровня земли из-за обрыва площадки. Там лестница ведет на уровень первого этажа. Общая глубина двух вестибюлей и лестниц составляет 75 метров.
Базовая часть облицована Nagelfluh, внешние фасады — известняком из долины Дуная около Кельхайма. Лестницы и внешние поверхности пола выполнены из гранита. Перед зданием с 1970-х годов росли липы, которые являются традиционным деревьями для аллей в Мюнхене.
Внутреннее устройство
Внутри симметрично выстроен и Дом искусства. Средний зал, первоначально известный как «Зал почета», соединяется с центром входа и ведет в северную галерею. Слева и справа от него находится большой вытянутый выставочный зал, окруженный несколькими комнатами поменьше. Эти зоны, составляющие центральную составляющую, достигают всей высоты здания. Административные помещения вытянуты с южной стороны, бывший ресторан, ныне северная галерея — с северной. Только эти части здания двухэтажные, с выставочными залами на верхнем этаже. Залы в полный рост и выставочные залы на верхнем этаже освещались световыми люками. Общая выставочная площадь составляет 5040 м². Выставочные залы на первом этаже можно разделить или распределить по желанию, чтобы можно было проводить несколько выставок одновременно. С самого начала, здание было несколько лифтов, сложное отопление и кондиционирования воздуха система и бомбоубежище, который использовался для выставок с 2011 года.
Внутри полы покрыты известняком Solnhofen, дверные коробки и плинтусы выполнены из юрского мрамора . В центральном холле полы, лестницы и облицовка выполнены из заальбургского мрамора, двери и плинтусы — из мрамора Тегернзее.
В восточном конце северной галереи, Goldene Bar расположен в бывшем зале фестиваля художников. Настенные росписи Карла Хайнца Даллингера снова были выставлены к 2004 году. На фоне сусального золота они показывают карты, а иногда и экзотические мотивы происхождения алкогольных напитков и роскошных продуктов. Club P1 использует бывшую пивную в подвале западного крыла.
Планировка и строительство
После того, как стеклянный дворец в Старом ботаническом саду сгорел в 1931 году, ассоциации художников Мюнхена Münchner Künstlergenossenschaft , Munich Secession и Munich New Secession основали «Munich Exhibition Management», чтобы построить новый выставочный дом для своих ежегодных художественных выставок и других мероприятий. В 1931 году они заказали мюнхенскому профессору архитектуры Адольфу Абелю новое здание на том же месте. После Адольфа ГитлераСтав канцлером в январе 1933 года, он отказался от проекта непосредственно перед запланированным началом строительства весной 1933 года. Он разместил заказ на новое планирование лично Полю Людвигу Троосту, Гитлер уже перестроил коричневый дом штаб-квартиры нацистской партии . Строительной площадки в старом ботаническом саду было недостаточно для монументальных планов Гитлера. В качестве нового места он устроил южный вход в Английский сад.
Первоначально Гитлер хотел организовать здесь «партийный форум», который состоял бы из Дома немецкого искусства, музея современной истории и дома губернатора партии, который располагался бы вокруг представительной площади. Троост отверг эти планы, потому что их требования к пространству слишком сильно мешали бы английскому саду. На этом раннем этапе своей карьеры Гитлера все ещё убедили профессиональные аргументы, и он ограничил проект на этом этапе Haus der Deutschen Kunst. [10] В рамках нацистской культурной политики здание было предусмотрено как авторитетное выставочное здание Германского рейха. Художественная галерея, запланированная для Берлина с 1936 года. Однозначно не должно конкурировать с Haus der Deutschen Kunst. Это также было направлено на восстановление роли Мюнхена как ведущего города искусства Германии, что нашло отражение в почетном звании Мюнхена «Столица немецкого искусства». Планирование было расширено до перепроектирования окружающей среды. Первоначально «выложили из живописной точки зрения» Prinzregentenstrasse стал Aufmarschstrasse, здания на южной стороне Von-der-Thann-Straße в Finanzgarten были снесены и фасад в стиле модерн из Atelier Эльвиры должны были на Северной стороне б принудительно упрощены. Фон-дер-Танн-штрассе также была расширена и использовалась как парадный маршрут.
Для финансирования гауляйтер НСДАП Адольф Вагнер организовал инициативу баварских и немецких промышленников с просьбой передать здание Гитлеру. Он смог представить первые обязательства Гитлеру в день его рождения 20 апреля 1933 года. Учреждение публичного права было основано как спонсор дома. Учредительное собрание состоялось в июне 1933 года, устав учреждения Haus der Deutschen Kunst (Новый стеклянный дворец) был официально принят 14 июля 1933 года.
Согласно мемориальной доске, прикрепленной после открытия, 18 донорами первого камня были: Герман Шмитц (IG Farben), Август фон Финк (Merck, Fink & Co), Роберт Бош (Boschwerke), Фридрих Флик (Mitteldeutsche Stahlwerke), Адольф Хойзер. (IG Farben), Август Дин (Deutsches Kalisyndikat), Теодор Фейз (Kaliwerke Friedrichshall), Фриц Рехберг (семейная компания текстильной промышленности и несколько наблюдательных советов, например Commerzbank), Якоб Хасслахер (Vereinigte Stahlwerke), Пауль Мюллер (Dynamit Nobel AG),Густав Крупп фон Болен и Хальбах (Kruppwerke), Вильгельм фон Опель (Adam Opel AG), Людвиг Розелиус (Kaffee Handels Aktiengesellschaft), August Rosterg (Wintershall AG), Willy Sachs (Fichtel & Sachs AG) , Карл Фридрих фон Сименс (Siemens), Людвиг Шуон (BASF), Филипп Реемтсма (сигаретные фабрики Reemtsma). Вместе они собрали три из первоначально запланированных пяти миллионов рейхсмарок, а город Мюнхен принес ещё 400 000 марок. Строительная промышленность и Рейхсбан сделали пожертвования натурой. Большое количество мелких и средних денежных и материальных пожертвований увеличило общую сумму средств, собранных сторонниками, до чуть более 10 миллионов. Поскольку в итоге стоимость строительства выросла до 12 миллионов марок, пожертвований было недостаточно. Таким образом, от Немецкого общества общественных работ была получена беспроцентная ссуда, но условия не были выполнены.
Первый камень в фундамент нового Дома немецкого искусства был заложен Гитлером 15 октября 1933 года. После того как Троост умер в 1934 году, здание принадлежало его служащим Леонхард Галл, в котором участвовала вдова Герди Троост.
В 1938 году Гитлер хотел, чтобы напротив Дома немецкого искусства был построен Дом немецкой архитектуры. Здесь бы выставлялись архитектура и прикладное искусство. Здание должно было быть упрощенной версией Дома немецкой архитектуры без лестничного пролёта, а колоннады были бы интегрированы в линию зданий. Дальше предварительных эскизов проект не пошел.
Примечания
- archINFORM (нем.) — 1994.
